The house on the Krk Island, Croatia, was completed in 2012 by DVA Arhitekta. The client wanted this house to be a vacation home with the aim of transforming it afterwards into a permanent one. It is located near the sea, with the green zone and a promenade, separating it from the sea.
The residence is big enough to shelter three families and all the significant facilities are oriented towards the seaview.
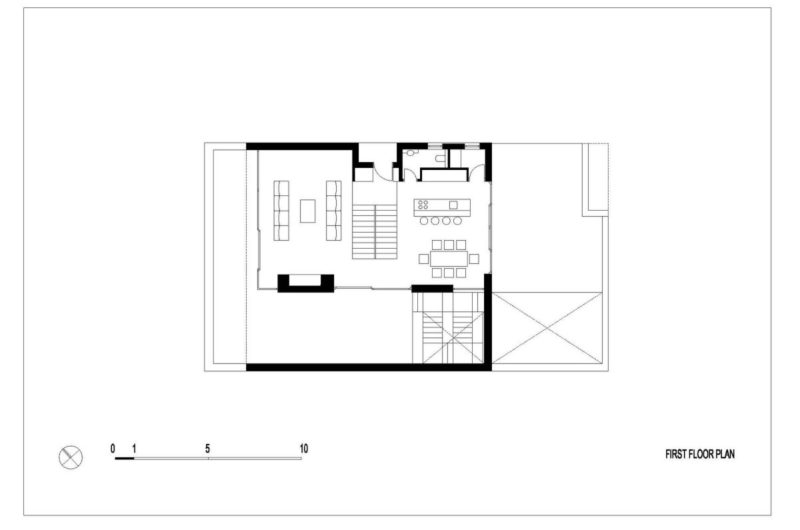
The base of the house includes the sleeping area that has access to the pool, while the living room is on the top of the construction and features outside spaces that provide the best of view.


















More Similar Articles Like This
Astonishing El Tovar by the Sea
Plain Geometric Residence Designed by Lidija Dragisic
Tips for Choosing the Right Blue Paint Color for Your Dining Room
Benjamin Moore Exterior Paint: Vibrant Shades for a Striking Home
Exceptional Coronado Bay Front Estate in California
10 Different Types of Blue Paint Colors
Extraordinary Constance Halaveli Maldives Resort
Vibrant Wood Tones: Explore a Spectrum of Spray Paint Colors!