Located within a lively neighborhood in Rio de Janeiro, Brazil, the Brise House was renovated masterfully in 2013 by Gisele Taranto Arquitetura. It offers 13,411 square feet of space and boasts a unique design that allows it to filter noise and provide a tranquil living experience to its owners. By implementing an interior courtyard, the architects made sure that natural light could enter the living areas without issues, while a series of movable shutters placed on the main façade are tasked with reducing noise whenever needed.
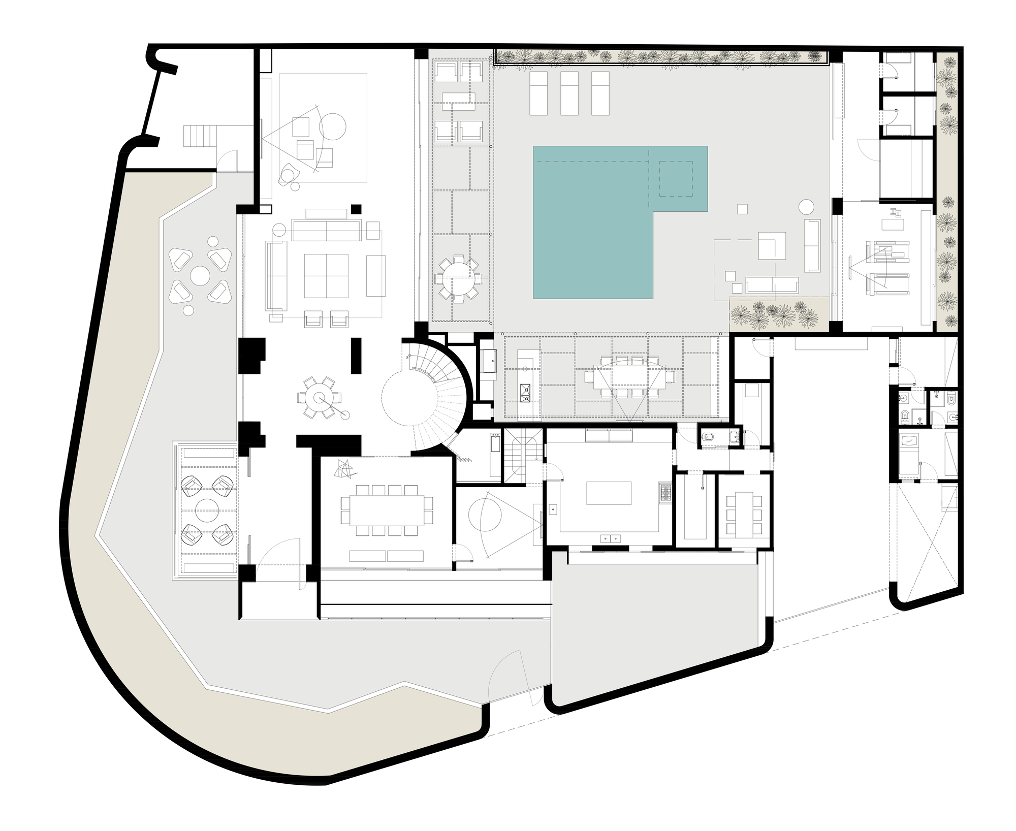
The original home comprised two buildings, both of which were merged by the renovation. The resulting block features private rooms at the second floor and a spacious living area at the ground level, all of which are orientated towards the interior courtyard. Many of the initial features of the abode were kept intact, including the Portuguese tiles in the dining room and the staircase, which received a visual upgrade.
The materials for this project were chosen specifically for their high quality and reliability. Great examples include the white aluminum used for the windows, the travertine marble used for the toilets, swimming pool courtyard and living room floor as well as the freijó wood found in the panels and doors.
From the architect:
This project consists in a renovation of a house located in a noble neighborhood of Rio de Janeiro, Brazil. Set on a lively area, the noise control was one of the top challenges, which in the end, had great influence in the final look of the architecture itself.
The main guidelines to solve this question was to turn the house to an interior courtyard, while movable shutters were integrated to the main facade, working as noise filters, but at the same time letting natural light into the space. The courtyard, integrated to the living area, also lets natural light inside all rooms. The gardens – that surround the whole structure – let the green foliage visually connected with the interior area through glass panels that build the facade.
The house was originally composed by two separate buildings. Their integration was also an important key point of this project. Only one main block was created, with living area on the ground floor, private areas on the second floor, all directed to the interior courtyard, where the swimming pool and a living room were located; and service area on the basement. There was also a huge concern in keeping the original features of the house, like the stairs, for example, that had its original structure kept and was updated to contemporaneity through the materials and the new rail made of iron. Were also kept the Portuguese tiles from the dining room.
As for the interior design, the project was born from the need of having wide living areas connected to the leisure area, so the clients could host parties and gatherings. Another request from the client was to provide the highest amount of external area with sun, minimizing the incidence of shadows in the swimming pool.
Since it was a renovation, some surprises were found in the process, like unleveled slabs and low beams. In order not to lose height, we took advantage of the existing beams and new ones were created, highlighted by a special lighting design, what made possible a comfortable integration of the living spaces.
The materials used were always defined having in mind that architecture is not for seasons and that the rooms should be as lit up as possible. Therefore, the travertine marble was chosen for the living floor, swimming pool courtyard and toilets; wood for the private areas and pasinato floor for the external areas. Interior e exterior walls are always white or lined with wooden panels. Shutters are in fiberglass, windows in white aluminum, canopy and doors in aluminum coated with corten steel paint; doors and panels in freijó wood; and the swimming pool in Batu Hijau. All woodwork was designed by the office.
On the other hand, the decoration focused on quality and elegance, rather then trends or styles. Spartan tones such as white, grey and black were privileged above others and almost all of the furniture used are signed by Brazilian and Italian designers.
Structural Project: Abilita welt
Construction: Laer
Lighting Project: Maneco Quinderé Associados
Area: 1246.0 sqm
Year: 2013
Photographs: MCA Estudio
















More Similar Articles Like This
Behr’s Brilliant Blues: 70 Shades of Stunning Paint Colors
Stunning Banyan Tree Ungasan Bali in Indonesia
Unique Click Clack Hotel In Bogota, Colombia
Spectacular Rooftop Apartment by Innocad
Lovelli Residence: Mediterranean-Style Dwelling in Bali
Wonderful Yachting Club Villas at Elounda Beach by Davide Macullo Architects
Different Types Of Foundations For Summer Houses and Garden Buildings
Gayton Road Residence by Paxton Locher Studio