Sketched out by a studio named studio SYNTHESIS and built in 2014 on a superb site in Tivat, Montenegro, this residence was dubbed Touristic Villa ‘S, M, L’, and it is absolutely splendid. It was built using reliable materials that would pass the test of time despite the humid and salty breeze that sweeps this location on a daily basis. The facade is ventilated and boasts timber panels that envelop a metal substructure. In order to ensure protection from the scorching sun, the architects used an aluminum frame with wooden battens as well as vertical timber panels.
The entryway is found at the lower level, which also includes a daytime area and the service spaces. The upper floors comprise the private spaces such as the bedrooms, bathrooms and a few terraces. Entertainment and socialization can be enjoyed in a semi-basement space. Spacious and comfortable, Touristic Villa ‘S, M, L’ flaunts floor-to-ceiling windows that offer staggering panoramas of Tivat Bay. The core of the house features an atrium with glazed walls, which houses a beautiful olive tree. In fact, the entire property is set to accommodate a wide variety of plants as well as evergreen trees, palm trees and coniferous species.
From the architect:
CONTEXT / The building is designed on urban lot no. 66, urban zone no. 9 within the boundaries of Location Study for Sector 27 and Sector 28, Krašići, Municipality of Tivat in Montenegro, in direct vicinity of the sea coast. The lot is positioned on the southern shore of the Tivat Bay. Terrain is facing north with direct – undisturbed view of the bay. Programme solution is aligned with functional, aesthetic and technological concept, after which Detailed Design was prepared.
In addition to relatively densely developed and planned structures in the surrounding, the building is at solid distance from surrounding lots at 3-5m spacing. At the boundaries with the coastal walkways, there is also 5 m spacing. The ground floor is fully adjusted to the terrain configuration, and planned land use allows for maximal exploitation of surfaces and good connection with all contents at the ground floor. Building is facing north-south along the length of building. Master day and night-time zone are facing east, apartments at the semi-basement level are northward orientation, and children zone is facing west.
ACCESS /Main connection is via designed road. Parking is organised within the lot, in the zone between construction and regulation line with 5 envisaged parking spaces. Pedestrian entrance is located next to the vehicular with the access path. In addition to this vehicular access, another will be formed on the lower side of the lot, from the seaside walkway. This provides good connection and fruitfulness through different thematic sections. Given levelling of the space, stairs are combined with shoring, architectural elements typical for this area.
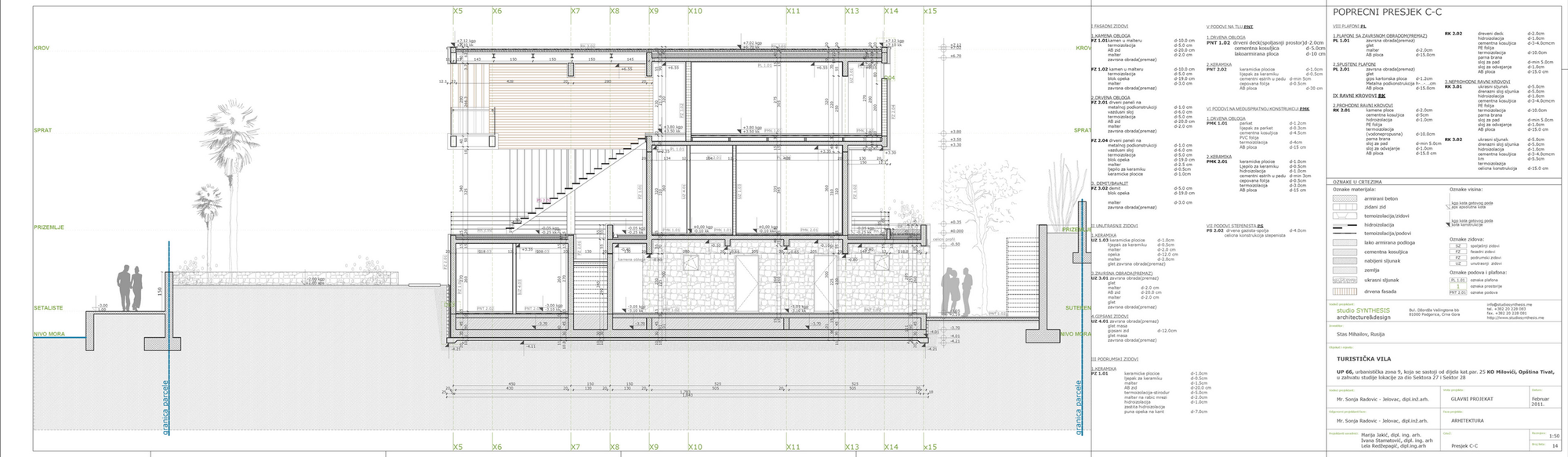
CONCEPT / Terrain configuration with initiated status, constraints presented in urban and technical requirements as well as the programme aligned with the client, define spatial forming of the structure. In respect to shapes, two structures are dominant, with finishing layer made of dark timber coating. Height of dominant structures is 9m, which are connected along the longer side of the lot with low linear fragment whose role is to be binding, functional and formal “tool”, at the same time tightly connected with the ground processed with natural stone. Despite substantially big area for a family villa, the concept of broken down forms and dark materialisation of basic cubes, is good key and manner of good integration into very sensible landscape of the Tivat bay.
LANDSCAPE DESIGN / required different composition of greenery both in terms of distribution and selection of species and shapes of vegetation which will contribute to the exclusivity of the very ambience. Newly designed solution will include quality palm trees, coniferous, deciduous and evergreen trees, coniferous and deciduous bushes, climbers, succulent plants.
Here we will single out several landscape units which separately have special greening requirements in respect to form and habitus of the seedlings or conditions in which these will grow, and those are:
Japanese garden
Atrium
Greenery along coastal walkway
Roof vegetation
Greenery in plant boxes
Other green spacesFUNCTION / In functional sense, the building is divided into various zones. Daytime zone with supporting-service premises is organised at the entrance elevation, which is enabled with adequate terrain management; night-time zones are organised on upper levels (rooms with bathrooms and big terraces); expanded daytime zones are accommodated in semi-basement. These zones are allocated for relaxation and entertainment, connected to the lower level of terraces (in part flat roofs over basements, extracted in front of the main section of the building), while plant and supporting premises are accommodated in basements.
The basement is located at -3.00 level, i.e. +1.0 m in respect to the sea level. Plant rooms for maintenance and functioning of the building, storage room, laundry room and wine cellar are accommodated on this level. Basement/semi-basement in the upper zone of the building, i.e. on the northern side exits the sea with its façade, with 2 apartments for guests and gym formed in this part, with separate access from the front side of the building. Technical premises can be also accessed from the front side of the building but from the functional aspect, these are connected with the basement of the building. Wine cellar, laundry room and storage room are located in the southern part of the semi-basement and are directly connected with vertical communication-stairs with the ground floor of the building.
Ground floor is delevelled – entrance level of the ground floor is at 0.00 elevation, i.e. 4.0 m above sea level. On this level, entrance zone (vestibule) is located, as well as children zone and apartments for guests; while daily master zone (aperitif zone with kitchenette and day-time zone) are accommodated at elevation -1.00 m i.e. +3.00 m. Entrance zone of the vestibule allows direct access to the daytime master zone via aperitif bar with stairs or living room also via vertical communications. The stairs from the vestibule further lead to the night-time master zone.
Apartment for guests, which is located at the ground floor in the southern section of the building, has a separate entrance. Main kitchen and dining room are also located on the same level. Two children rooms are formed in the middle section of the building. These are accessed from the corridor which is facing east, i.e. internal yard. Children rooms are facing west, looking at Japanese-zen garden. Children rooms have separate toilets. On the northern side of the building, at the ground floor level, there is one guest apartment with separate entrance and toilet.
On the upper floor above the daily master zone, night master zone (rooms with bathrooms, walk-in closets and terraces) is organised, with access from vestibule via vertical communication. In the northern section of the building, the floor is allocated for two guest apartments, with separate bathrooms. Apartments are facing east-north. Apartments are accessed from external stairs from the internal yard.
Daily zone and bedrooms are facing the sea. Big glazed openings completely open the building towards the sea and provide 180 degree view. In the middle of the building is atrium – specific semi-closed space, with glazed walls. This space accommodates olive-tree with insolation on acceptable level.
MATERIALISATION / Quality contemporary materials with adequate characteristics for coastal zone conditions, resilient to higher humidity, insolation and salinity are used for materialisation. This particularly refers to materials used for coating facades, eaves, external curtains, fences and such. In addition, applied materials match character of the Mediterranean spirit.
Ventilated façade is used, in one segment coated in combination of two types of stone, Travertino Classico and Travertino Noce. Most of the façade is coated in timber panels made of wooden sheet piles type “Ipe”, on metal substructure. Vertical timber panels, dimensions … aluminium frame with wooden battens are used as elements for protection against sun. Fences on terraces are a combination of black pro-chrome and glass. Roof of the building is flat, inaccessible. On one roof side, green roof garden with a path made of concrete boards in gravel is formed.
Architect In Charge: Sonja Radovic- Jelovac
Co Architects : Nikodin Zizic, Marija Jakic
Project Team : Ivana Stamatovic, Lela Redzepagic, Bojan Stankovic, Milic Djerkovic
Area: 1345.0 sqm
Year: 2014
Photographs: Slaven Vulis
Interiors: Artefacto +, Podgorica, Montenegro
Construction Supervision: Predrag Babic civil eng.
Landscape Designer : Zeljka Curovic
Structural Engineer : Srdjan Jankovic
Site Area: 1.818,65 sqm















More Similar Articles Like This
Astonishing El Tovar by the Sea
Wonderful Yachting Club Villas at Elounda Beach by Davide Macullo Architects
Vibrant Wood Tones: Explore a Spectrum of Spray Paint Colors!
6 Garden and Lawn Tips to Get Ready for Spring
Gayton Road Residence by Paxton Locher Studio
Green Gables Home In Fairfield, Connecticut, United States
Exploring the New World of Luxury Hoteling
Boracay Resort & Spa in the Fascinating Philippines