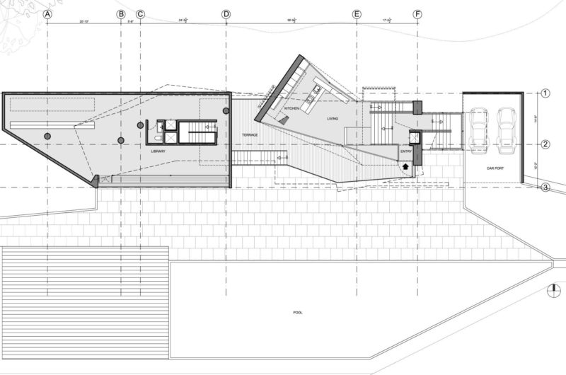
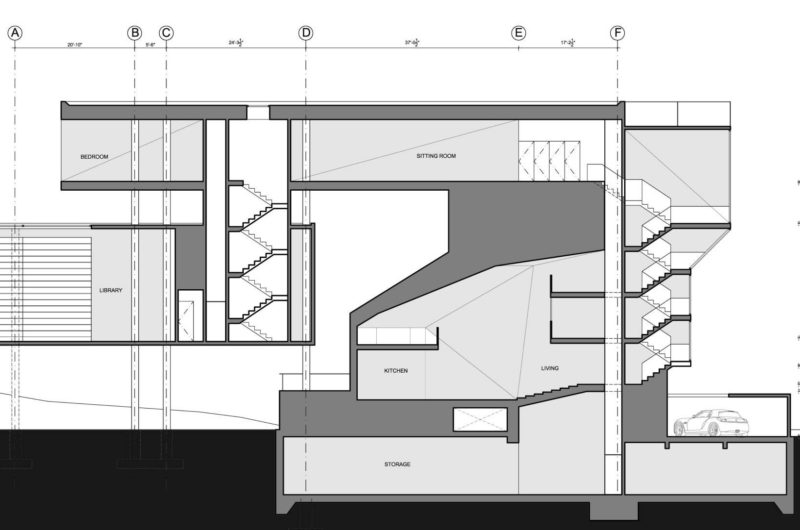
Aviator’s Villa is a project developed by the New York City-based studio Urban Office Architecture for a retired pilot. This loft-life residence is located near a lake in Duchess County, New York, USA and is organized as an analogical continuum of disassembled flight components.
As a plane steers and points through currents, this house turns and torques to face the sky, the surrounding views and the waters, in order to offer the owner the best from everything there is.
The entire house is flooded by natural light due to the large open glazed panes mounted on riveted metal frames.
The architectural morphology of the house can be described as expressive but simple, allowing the owner to follow a disciplined and timed journey through his home.














More Similar Articles Like This
Lovelli Residence: Mediterranean-Style Dwelling in Bali
The Sophisticated Casa Villa Flamingo in Spain
Loving Luxury at Mardan Palace Resort, Turkey
Behr’s Brilliant Blues: 70 Shades of Stunning Paint Colors
Amazing Four Seasons Resort Bora Bora
Pure Perfection: Discover the Top White Paint Colors for a Flawless Décor
Spectacular Rooftop Apartment by Innocad
Superb Luxury Penthouse in Portomaso, Malta