Designed by Warren Liu and Lim Pin Jie from the “a-dlab” architecture company, this exceptional residence can be found in Singapore, on Andrew Road to be exact. Boasting approximately 7,000 square feet of living space, this contemporary home benefits from breathtaking views of the nearby MacRitchie Reservoir.
However, due to its close proximity to a busy highway, noise had the potential to become a serious problem. Consequently, the architects decided to take advantage of the lot’s slightly unusual undulation and placed the main entry at the second level of the abode, while the ground level houses the common living areas thus sheltering them from the sounds of cars and people.
The exterior layout of the abode is quite understated and doesn’t involve any extravagant elements or bold color tones. The folding and wavy roof is enveloped in turf in order to connect to the surrounding environment.
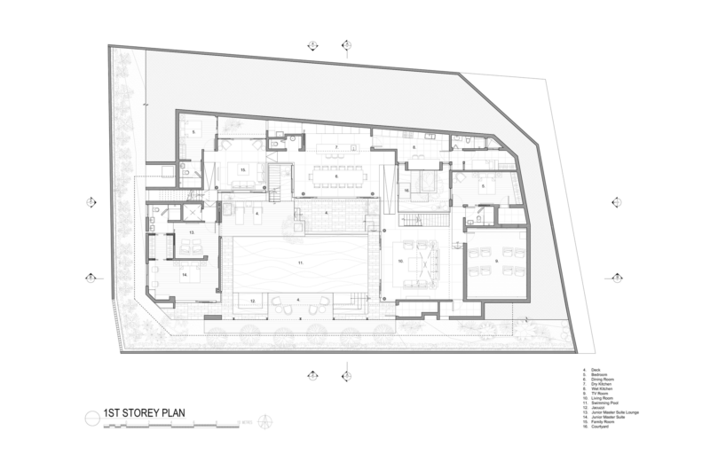
As far as the interior arrangements are concerned, it’s worth noting that the home features several hidden and dethatched hallways and staircases that ensure quick and easy access to the main living areas while separating them from each other efficiently for privacy purposes. One of the main highlights of this residence comes in the form of a central courtyard that flaunts its own beautiful swimming pool. This courtyard is a perfect place for socialization and relaxation and brings the family members together while allowing them to enjoy each other’s company in complete comfort.
Photos by Derek Swalwell






















More Similar Articles Like This
Seamlessly Apartment by the Beach by ZZ Architects
Opulent Mandarin Oriental Hotel in Paris
The Superb Maradiva Villas Resort & Spa in Mauritius
Secluded Naladhu Island in Maldives
Wonderful Yachting Club Villas at Elounda Beach by Davide Macullo Architects
Extraordinary Constance Halaveli Maldives Resort
Gorgeous And Spacious Home In Sunset Strip
Stunning Banyan Tree Ungasan Bali in Indonesia