The remarkable Hudson Valley Country House is a 7,000-square-foot contemporary residence designed by Fractal Construction (a New York City-based practice) and completed in 2011. It is located in Cold Spring, New York, and it consists of two separate buildings connected by a dramatic bridge.
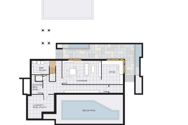
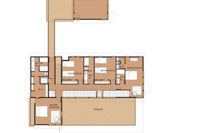
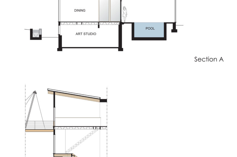
The three-story main house flaunts an open-floor plan that ensures a seamless transition between the communal spaces: living area, dining space, kitchen, indoor pool. The basement features an art studio, and the rest of the rooms include the children’s playrooms, utility rooms, an office, three bedrooms and baths, and a study.
Large windows ensure plenty of natural light while also offering amazing views towards the surrounding nature. The spacious terraces play an important role in bringing the dwellers of this stunning home closer to the environment. Connected by the main building by the sculptural bridge is a two-car garage that also has a spacious second floor, ideal for relaxation, yoga and meditation.
Another important feature of this house is its eco-friendly character. The interiors for instance include salvaged furniture and lighting elements, and the indoor pool does not use harmful chemicals to filter the water. What a perfect place for family reunions and precious escapes from the crazy city life!
Photos by: Eric Laignel, Jacob Sadrak









































More Similar Articles Like This
Dreamy Oceanfront Chateau In West Vancouver, Canada
Beautiful Apartment in Stockholm for $1 Million
Pure Perfection: Discover the Top White Paint Colors for a Flawless Décor
Behr’s Brilliant Blues: 70 Shades of Stunning Paint Colors
Green Gables Home In Fairfield, Connecticut, United States
Amazing Four Seasons Resort Bora Bora
Vibrant Concrete Floor Paint Colors to Elevate Your Space
Different Types Of Foundations For Summer Houses and Garden Buildings