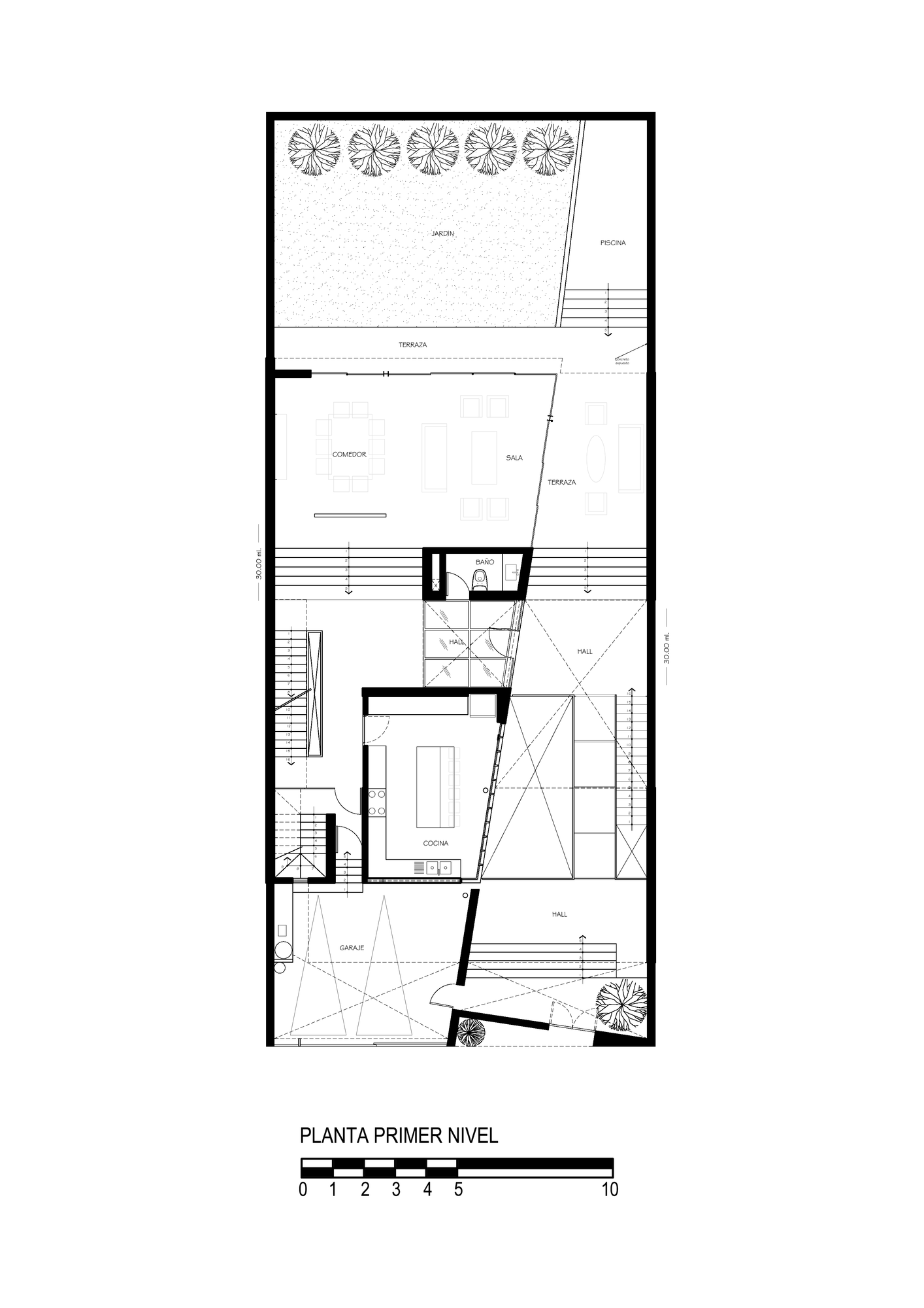
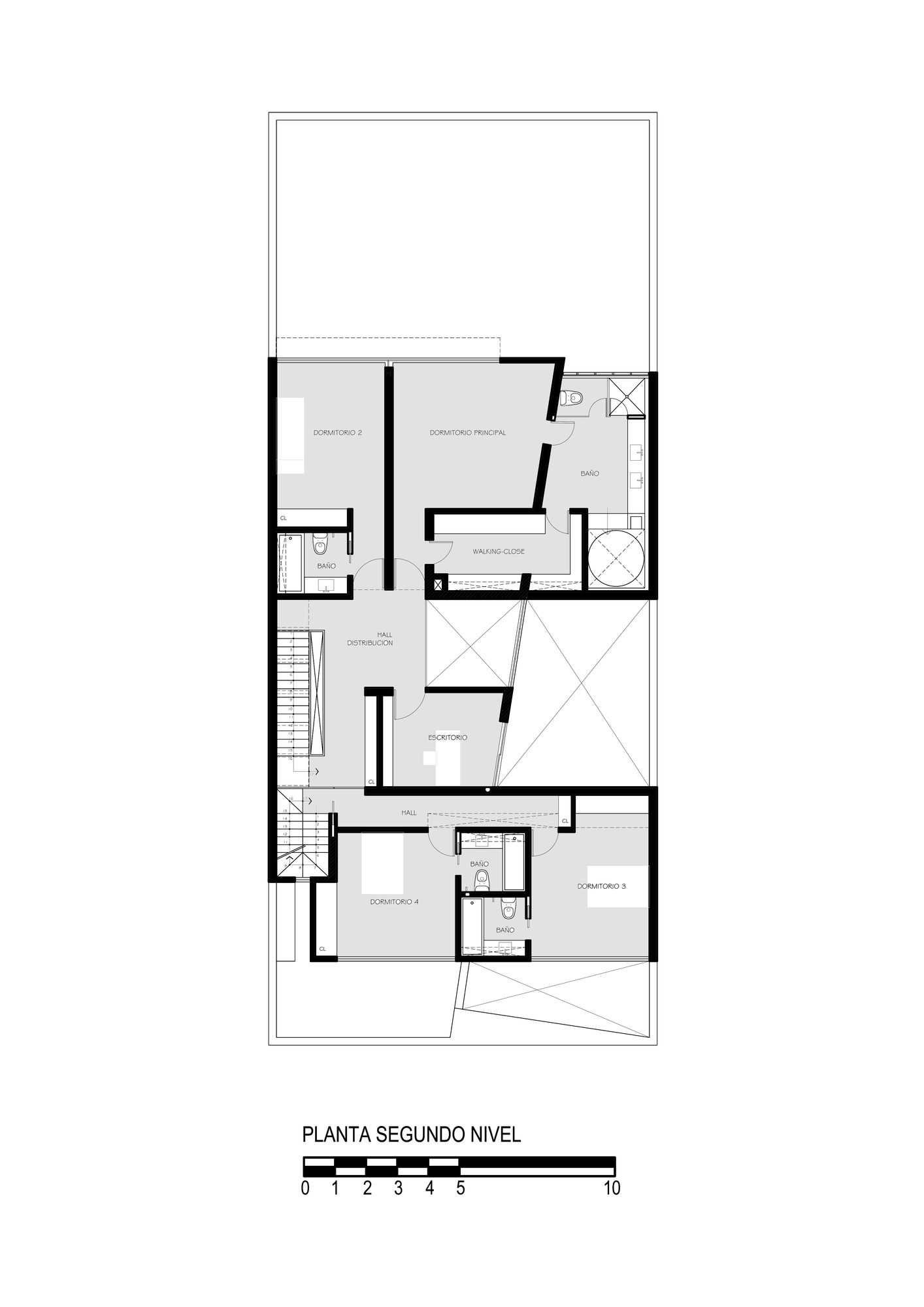
This wonderful house can be found in San Isidro, Lima, featuring a contemporary layout sketched out by Seinfeld Arquitectos and built in 2009 by Nahum Zaidman providing 577 square meters of living space.
The house flaunts modern interiors with large windows that ensure an unobstructed flow of natural light, creating a seamless transition between the indoors and the outdoors while also providing great views of the surrounding environment and the rear garden.
All rooms are appointed with a blend of luxury conveniences, high-end appliances and beautiful decorations, creating a relaxing and comfortable home environment to be enjoyed by the owners and their lucky guests.





















More Similar Articles Like This
Outstanding Bodrum Houses in Yalikavak, Turkey
A Superb Italianate Mansion in California, USA
Stunning Sustainable Home in Costa Rica by SPG Architects
Stunning Banyan Tree Ungasan Bali in Indonesia
Green Gables Home In Fairfield, Connecticut, United States
Exquisite Crossacres Mansion In Surrey, England
Dreamy Oceanfront Chateau In West Vancouver, Canada
6 Garden and Lawn Tips to Get Ready for Spring