A House was completed in 2013 by 08023 Architecture + Design + Ideas, and it flaunts 4,843 square feet of space. It features a contemporary design but incorporates elements that were sourced from older buildings such as a steel mill. Located in Badalona, Barcelona, Spain, the abode benefits from an open plan architecture that boasts a folded geometry in order to allow the entryway to benefit from ample natural light.
As we already mentioned, the house borrows elements from older buildings. Fine examples include the steel plates used to build the staircase, the shutters sourced from a demolished house and the industrial lamps that provide artificial lighting. The crown jewel is definitely the main door, which was recovered from an old public building.
In order to ensure that the residence would be able to communicate with the outdoors, the architects decided to leave out fences in order to fade the limits between the inside and outside areas of the plot.
From the architect:
The aim of this project, at the explicit request of the owners, is to combine modern architecture with recovered elements from other buildings in a harmonious contrast between old and new.
The result is an open plan sunny architecture, flooded with light. An architecture that is sensitive to the history of objects and recover their memory in a new home.
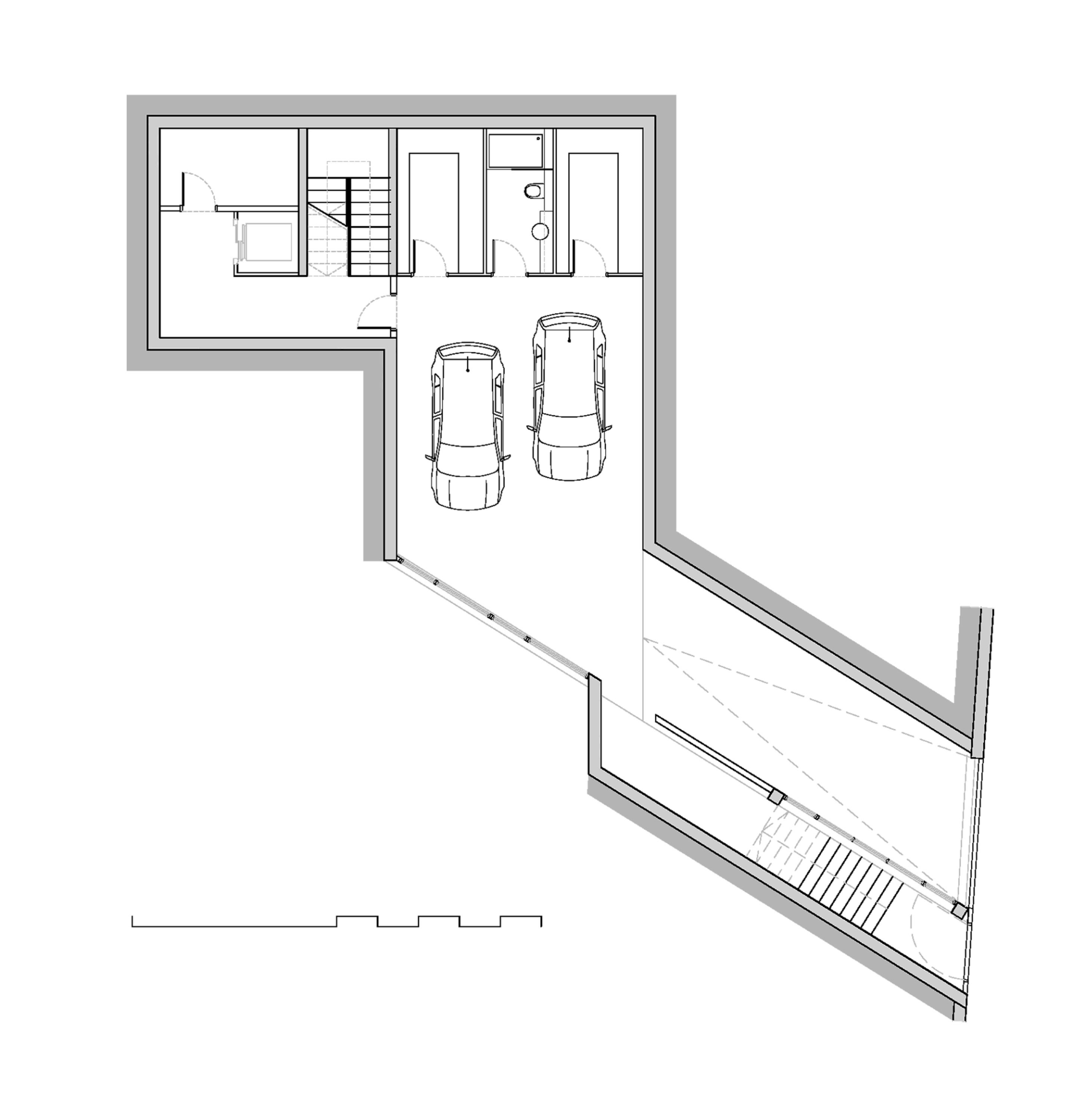
The geometry of the house is folded to give entry to the highest quality of natural light. The lights of North, South, East and West, with their different qualities, are introduced in different areas of the house.
Old spirits of forgotten buildings come to life in a new home. The shutters of a demolished building of the Barcelona Eixample live again in the new openings. The steel plates of a dismantled steel mill are used to build the staircase. Large industrial lamps hung remember their old home in higher buildings.
And the door. A small jewel recovered from and old public building in the province of Barcelona.
In the hands of the same carpenter who restored part of the Gaudí building Casa Batlló, sign our way from outside to inside the house. It was not restored, it was adapted to make it work properly and let the signs of time, writings, engravings and incisions in the wood show life still flows in its veins.
But the house needs to talk. Needs to communicate with the environment. No fences are placed and the plot boundaries are blurred. The same trees and grass species are planted inside and outside of the plot. A few months after finishing the works was no limits between the forest and the plot.
Architects In Charge: Cristina Mora, David Jiménez Architects
Constructor: Quality Homes Factory
Area: 450.0 sqm
Year: 2013
Photographs: Simón García












More Similar Articles Like This
Best paint colors for the living room
Outstanding Bodrum Houses in Yalikavak, Turkey
Benjamin Moore Exterior Paint: Vibrant Shades for a Striking Home
Beautiful Apartment in Stockholm for $1 Million
Superb Luxury Penthouse in Portomaso, Malta
Opulent Mandarin Oriental Hotel in Paris
Vibrant Wood Tones: Explore a Spectrum of Spray Paint Colors!
Contemporary BO House In Envigado, Antioquia, Colombia