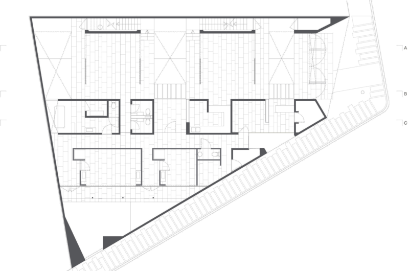
Ambrosi I Etchegaray architects had to design a spa facility in a 1607-sq-ft space in Queretaro city of Mexico.
Since the center was created for relaxation, the constant connection to the surrounding nature was a must. For this purpose, the space was perforated with inner gardens. Glass walls relate to these gardens and enhance their effect to the inside of the lower level. This part of the building includes the cafeteria and the common rooms.
The entrance is paved with wood volumes and leads to the massage rooms. Light plays along the lightly colored walls and the wood pavement to create a calming effect. The upper floor consists of the yoga pavilions made of glass and steel. Here one can enjoy the most relaxing views over the landscape.
This entire building suggests harmony and generates a calming sensation that acts like a balm for the soul.
















More Similar Articles Like This
Spectacular Rooftop Apartment by Innocad
Marvelous Anantara Dhigu Resort
Behr’s Brilliant Blues: 70 Shades of Stunning Paint Colors
Gorgeous And Spacious Home In Sunset Strip
A Superb Italianate Mansion in California, USA
Stunning Banyan Tree Ungasan Bali in Indonesia
The Superb Maradiva Villas Resort & Spa in Mauritius
Lawn Care Tips, The Basics For Each SeasonÂ