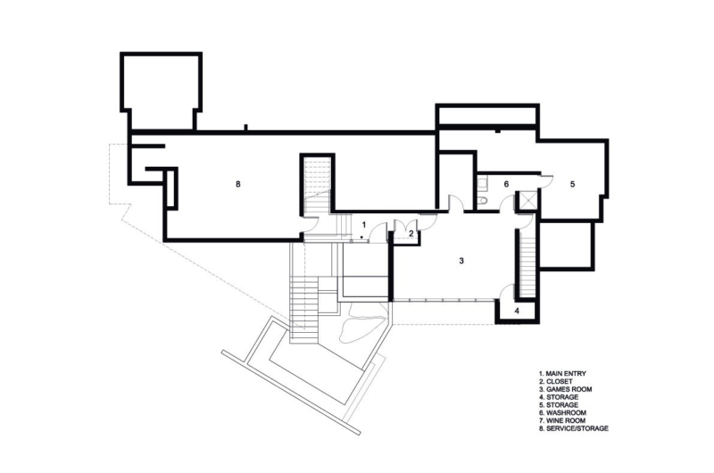
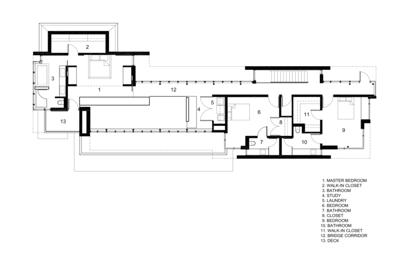
The House 4249 designed by DGBK Architects is located in West Vancouver, Canada. This project nicely captures the spirit of openness and the connection with nature.
There are no boundaries between the built and the natural, the house being one with the natural surroundings. It features clean lines and a simple design, simplicity being the characteristic that amazes.
The spatial volume of this residence is organized around the positive and negative forms, providing the home both its interior focus and its outer link with the nature.
Photos by Wade Comer


















More Similar Articles Like This
Wonderful Yachting Club Villas at Elounda Beach by Davide Macullo Architects
70 Shades of Green: Benjamin Moore’s Vibrant Paint Colors
Lawn Care Tips, The Basics For Each SeasonÂ
How Seattle Lawn Care Service Deals With Overgrown Lawns
Lovelli Residence: Mediterranean-Style Dwelling in Bali
Secluded Naladhu Island in Maldives
Gayton Road Residence by Paxton Locher Studio
Exploring the New World of Luxury Hoteling