The residence that we’re about to present was renovated in 2012 by a team of architects from LRSTUDIO, and it is located In McAllen, Texas, USA. The original house dated all the way back to the 1950s and was designed to accommodate a single family in relatively modest conditions. The renovation project ensured that the new house would meet modern standards of comfort and elegance while providing 3,121 square feet of living space for the inhabitants.
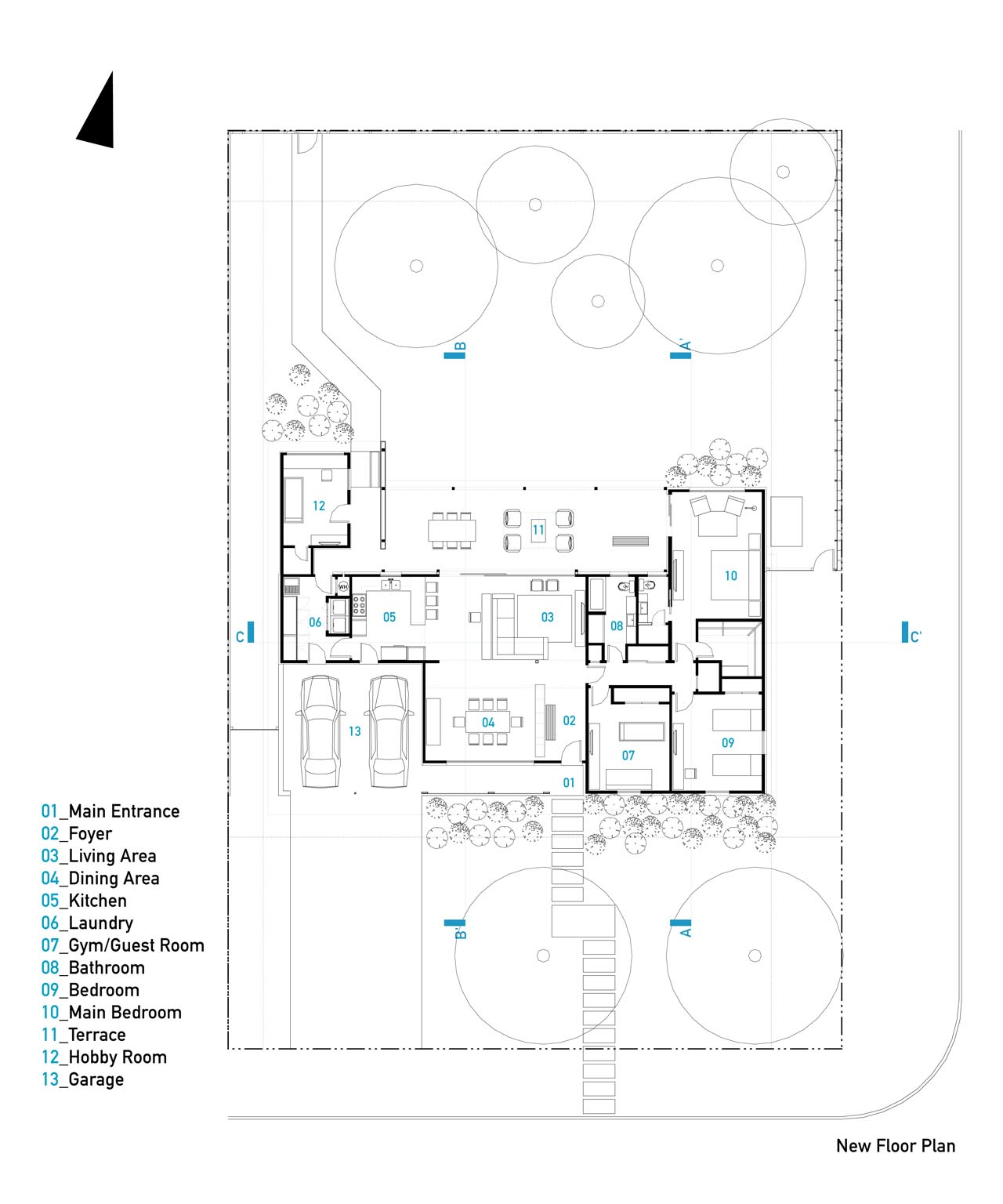
The main idea behind the project involved dividing the original gabled roof into different pieces, which allowed the architects to implement certain solutions regarding natural light and fluidity of spaces. Every room is connected to the main social area, the living room, which ensures easy access to an outdoor patio.
From the architect:
Casa Westway is a renovation projects of a single family house built in the late 50’s in downtown of McAllen Texas. The original house wasconstructed as a single rectangular footprint with a typical south Texas two pitched roofswhich represents a very distinctive house prototype of his time in this region.
The main idea was to break the shape of the gabled roof into several pieces by unfolding planes.
This gave us the chance to create cross relationship which transforms roof into façade and façade into roof, and provided interior spaces richer value of natural light and articulation.
Each room were linked to social area to provide a more fluent relationship between spaces and continued to exterior patio in order to extend the living room to outdoor space along with the roof system.
This materiality of the roof seeks to create an expression that will change over time to look for an intimate dialogue with the neighboring house.
Architects: LRSTUDIO, Katagiri Architecture + Design
Location: McAllen, Texas, USA
Architect In Charge: Luis López, Kazuya Katagiri
Area: 290.0 m2
Year: 2012
Photographs: LRSTUDIO
Collaborators: Julio de León (EU), Samantha Núñez (MEX)
Site Area: 1238 m2
Facade: Metal Cladding, Madera Cumarú, Siding de Madera Pino para Exterior
Flooring: Madera de Pino para exterior, Concreto Pulido, Piso Cerámico en interior, Duela de Madera en interior


















More Similar Articles Like This
Amazing Four Seasons Resort Bora Bora
Dreamy Oceanfront Chateau In West Vancouver, Canada
Tips for Choosing the Right Blue Paint Color for Your Dining Room
The Sophisticated Casa Villa Flamingo in Spain
Santa Barbara Style Home in Paradise Valley, Phoenix
Gorgeous And Spacious Home In Sunset Strip
Beautiful Apartment in Stockholm for $1 Million
Secluded Naladhu Island in Maldives