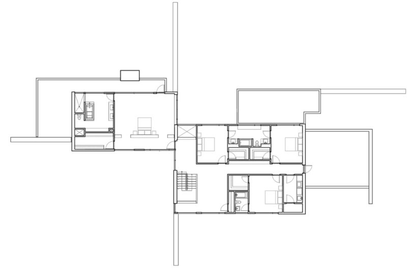
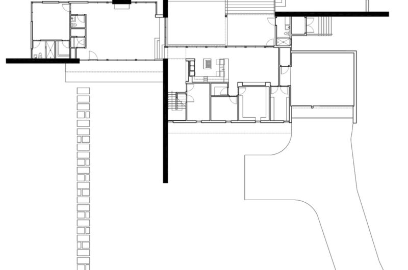
Located in Austin, Texas, this contemporary residence was renovated and extended in 2011 by Specht Harpman. It is known as the West Lake Hills Residence and it now features 5,500 square feet of living spaces, all beautifully decorated in a unique manner.
The site was covered by tall trees and the owners wanted them all protected and cleverly integrated into the design. The new residence is much different from the original one from the 1970s, but there is still a sense of modesty that is kept in the new project, reminding of the original house.

























More Similar Articles Like This
Spectacular Rooftop Apartment by Innocad
Loving Luxury at Mardan Palace Resort, Turkey
10 Different Types of Blue Paint Colors
Exquisite Crossacres Mansion In Surrey, England
Boracay Resort & Spa in the Fascinating Philippines
Superb Luxury Penthouse in Portomaso, Malta
Seamlessly Apartment by the Beach by ZZ Architects
Tips for Choosing the Right Blue Paint Color for Your Dining Room