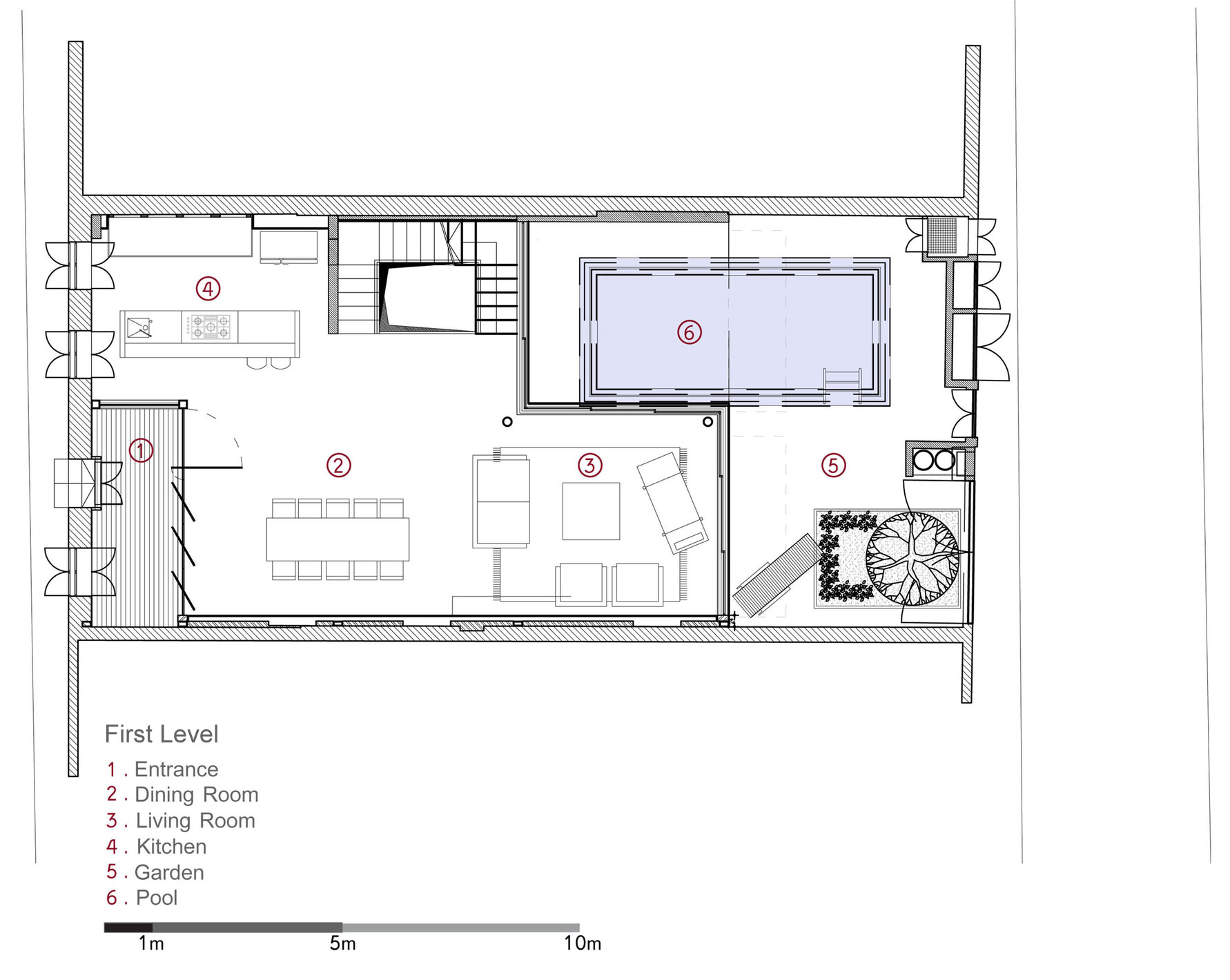
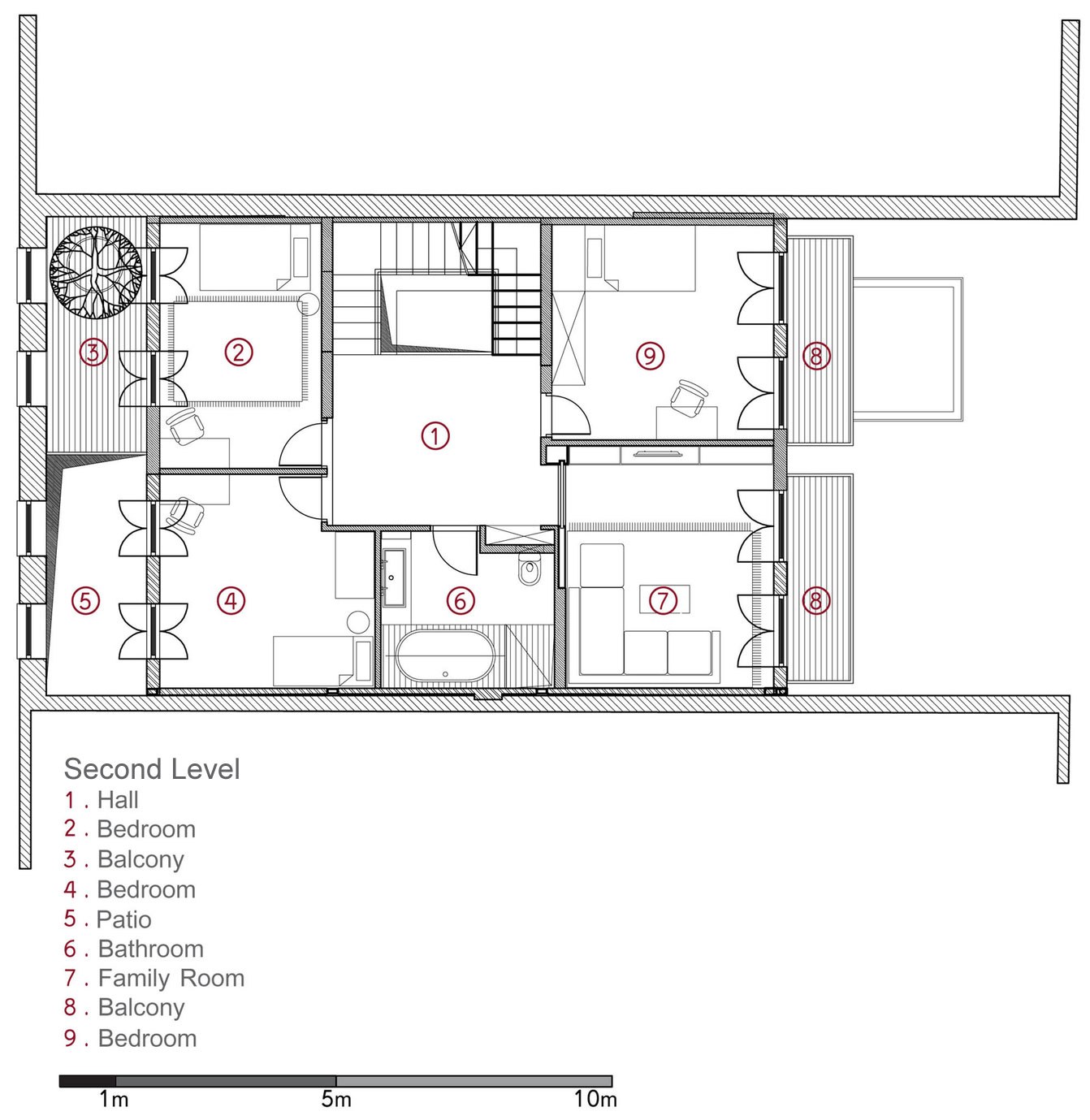
The V House can be found in Tel Aviv, Israel, and it represents a welcoming and cozy abode that was sketched out in 2013 by a company called Paz Gersh Architects. The home was inspired in its design by the unique cues of a Mediterranean Villa, and so it boasts several levels that are connected by an interior staircase.
Even though it features a series of locally inspired elements such as patios, a courtyard and a series of terraces, these elements were designed with modernism and convenience in mind, which is why they turned out so spectacular. The magnificent green courtyard houses a large swimming pool that can easily accommodate the owners as well as their guests in utmost comfort. Once inside, one instantly comes to realize that this is a family home at its core, all thanks to a lovely selection of colorful décor elements and furnishings complemented by natural plans.
In order to ensure an adequate degree of transparency and natural light within the abode, the architects that were in charge of the construction process implemented a plethora of glass elements that were meant to smooth the transition between the exterior and interior spaces. All in all, the V House in Tel Aviv is a stunning place to come home to everyday and a spectacular example of contemporary design and ingenuity.


















More Similar Articles Like This
Exceptional Coronado Bay Front Estate in California
Plain Geometric Residence Designed by Lidija Dragisic
Spectacular Rooftop Apartment by Innocad
Amazing Four Seasons Resort Bora Bora
Unique Click Clack Hotel In Bogota, Colombia
Benjamin Moore Exterior Paint: Vibrant Shades for a Striking Home
Astonishing El Tovar by the Sea
Exquisite Crossacres Mansion In Surrey, England