House V2 is a modern architectural project that was designed by 3LHD Architects. It is located in Dubrovnik, Croatia in an attractive location near the sea.
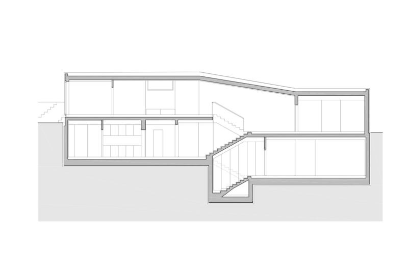
The body of the house is incorporated into the landscape and is defined by the undulating roof plate. The construction features simple and geometric forms and white stone facades, which make it blend perfectly with the surroundings.
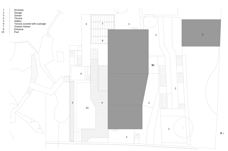
The project started from the idea of designing a home that should be open to nature but also protected against the climate and private.
The structure of the house consists of several levels, the entrance being set on the top floor, while the parking area is located next to the street. Other amenities include three bedrooms with bathrooms, the parents’ bedroom with a dressing room and a bathroom, staircase, spacious living room, dining area, kitchen, service space, storage and toilet, TV lounge with projector screen and also a space for kids to play.



















More Similar Articles Like This
Different Types Of Foundations For Summer Houses and Garden Buildings
70 Shades of Green: Benjamin Moore’s Vibrant Paint Colors
Saguaro Palm Springs by Joie de Vivre
Green Gables Home In Fairfield, Connecticut, United States
Behr’s Brilliant Blues: 70 Shades of Stunning Paint Colors
Marvelous Anantara Dhigu Resort
Stunning Banyan Tree Ungasan Bali in Indonesia
Spectacular Luxury House in Sarasota, Florida by DSDG Inc. Architects