Set within a district of São Paulo named Vila Madalena, this stunning residence offers 4,402 square feet of living space and was sketched out by Monica Drucker of Drucker Arquitetura. Since it was designed to house a family with 3 children, the home offers spacious accommodation options for each family member while ensuring their privacy.
The upper floor includes 3 suites, all of which benefit from access to a verandah that is covered by glass and pergola elements. This verandah offers great opportunities for relaxation and fun, especially for the children who can take advantage of its space in order to play.
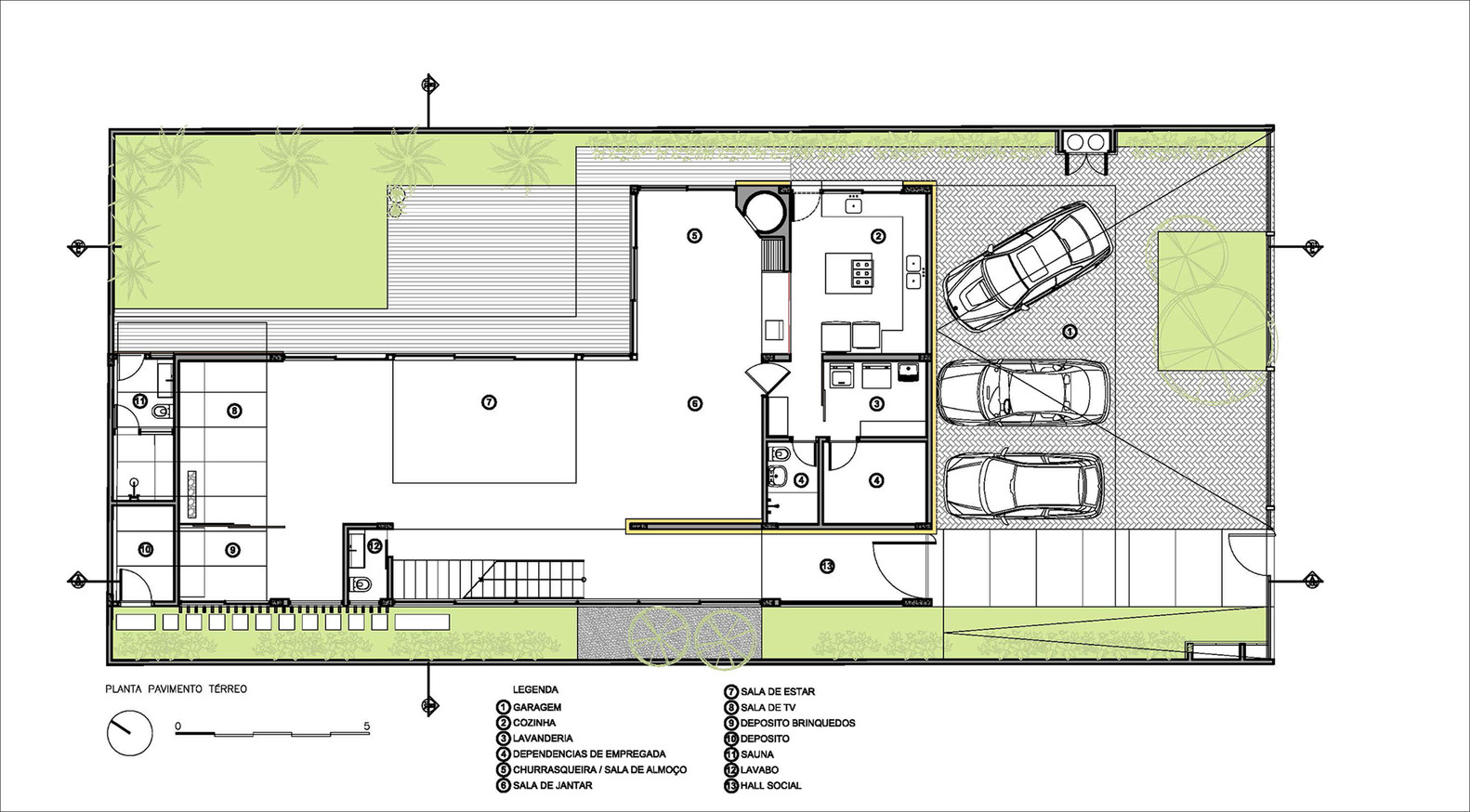
The glazed openings of the façade are sheltered by a cumaru sliding window, which also serves to bring natural light within the residence during the day. The living room and the kitchen can be found on the ground floor, and they are both equipped with quality furniture pieces and high-end appliances respectively.
From the architect:
Creating disguised transparency ambiances such as gardens, patios with pergolas, and openings partially protected by brises, Architecture has provided to tenants the desired sunlight, ventilation and privacy. Set in Vila Madalena, western district of São Paulo, a very intensively socially and culturally agitated region, this 400 m² residence was designed by architect Monica Drucker for a couple with three small children.
The project occupies the whole lot. The sides have gardens, and the home faces the greenery, making the distinction between interior and exterior very slight. The large glass frames with double high ceiling open to the two sides of the house, one of them protected by brises, allowing good natural lighting, in spite of the building at the back. At the top floor, the three suites are integrated through a veranda covered with a pergola and glass. This clear and pleasant space, besides providing the necessary privacy for the bedrooms in relation to the neighboring building, is useful for the children, who can play there safely.
A walkway, protected by a glass railing, leads to the suites, passing between one side of the stairway and the intimate room. At the façade, the horizontalness is enhanced by the generous cumaru sliding window, which protects the glazed openings. In order to avoid the tall claustrophobic walls, common in big cities, the solution was a wooden strips gate.
Architects: Drucker Arquitetos Associados
Location: São Paulo – São Paulo, Brazil
Architect in Charge: Mônica Drucker
Design Team: Ruben Otero, Victor Minghini, Ignácio Errandonea
Area: 409.0 sqm
Project Year: 2011
Photographs: Leonardo Finotti
Contractor: arquiteto Marco Antônio Garibaldi
Structural Engineers: OPS Engenharia S/C ltda
Landscape architects: Alalou Paisagismo
Site Area: 420,00m²












More Similar Articles Like This
Gayton Road Residence by Paxton Locher Studio
Dreamy Oceanfront Chateau In West Vancouver, Canada
Lovelli Residence: Mediterranean-Style Dwelling in Bali
These Top Tips Will Help You to Turn Your Garden into the Ultimate Glamping Site!
Santa Barbara Style Home in Paradise Valley, Phoenix
Outstanding Bodrum Houses in Yalikavak, Turkey
Loving Luxury at Mardan Palace Resort, Turkey
Different Types Of Foundations For Summer Houses and Garden Buildings