The Big & Small House located in Los Angeles, CA, USA, was completed by Anonymous Architects in 2012.
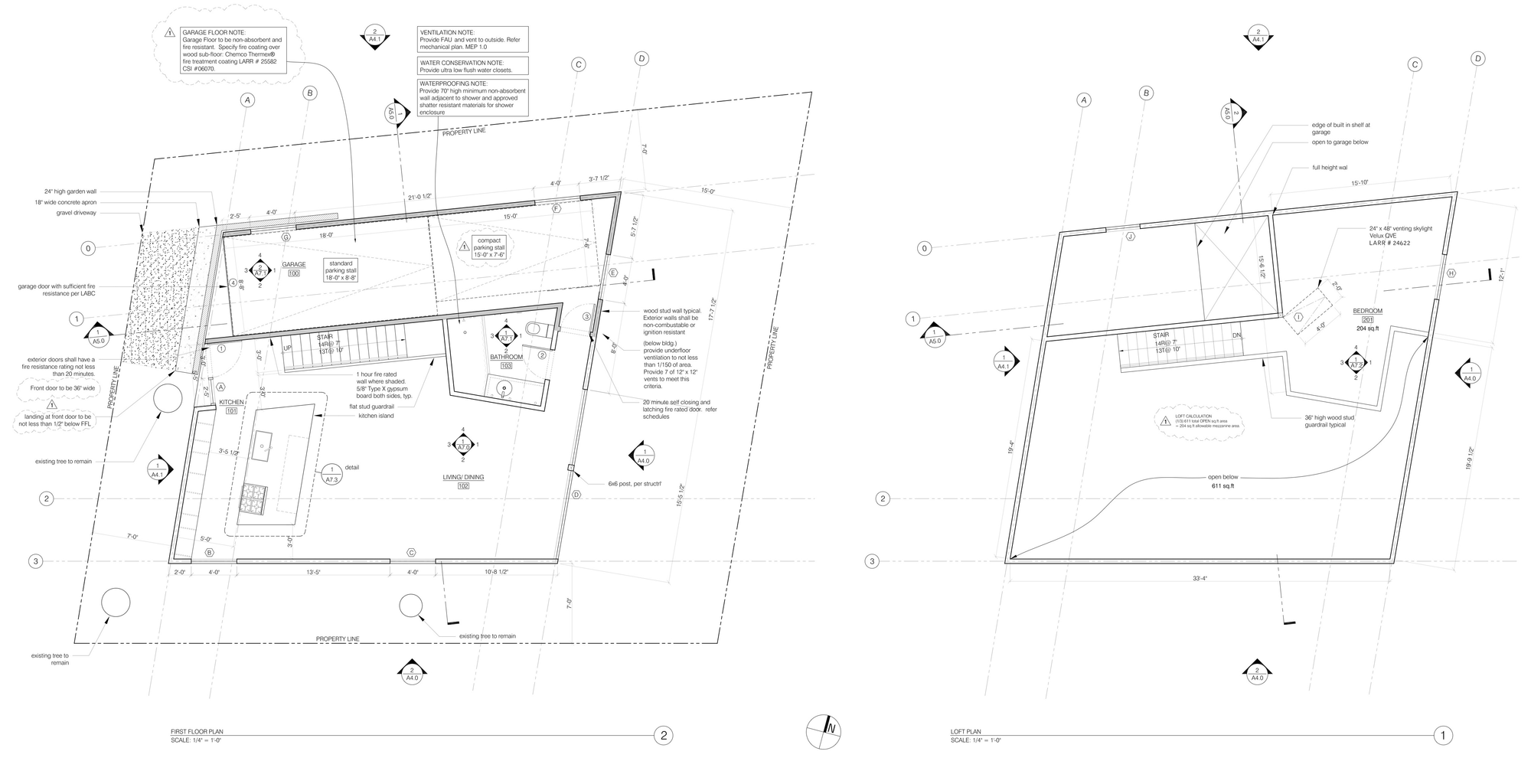
Because the available lot was half of the normal minimum lot size, something had to be done in order to compensate for the relatively small footprint of the construction. This thing was done by the 2 full height walls inside that transformed the interior room into a space as large as the building footprint. The result is that the smallest house contains the largest room, compensating by volume what lacks in square footage.
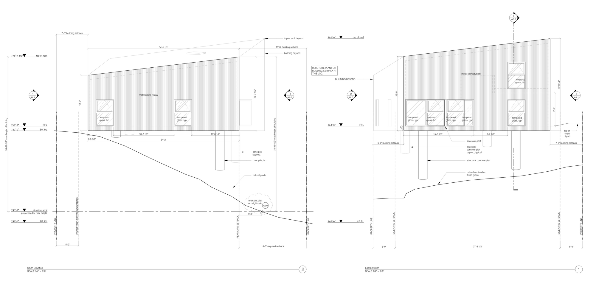
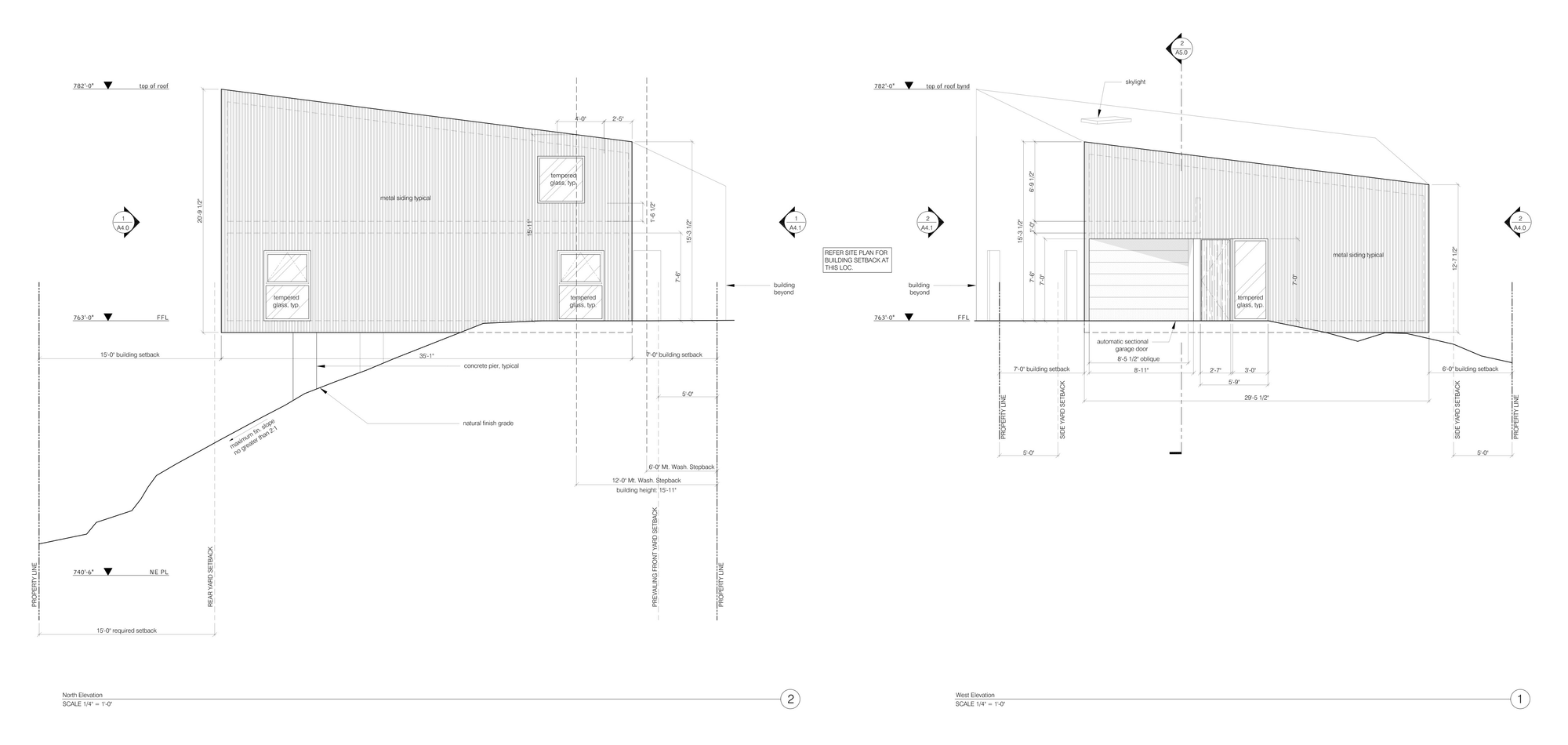
The asymmetric parallelogram shape of the site is followed by the plan of the building, this thing explaining the unusual shape of the house.























More Similar Articles Like This
Saguaro Palm Springs by Joie de Vivre
Exquisite Crossacres Mansion In Surrey, England
Outstanding Bodrum Houses in Yalikavak, Turkey
The Superb Villa Verai on Phuket Island, Thailand
Spectacular Rooftop Apartment by Innocad
Opulent Mandarin Oriental Hotel in Paris
Plain Geometric Residence Designed by Lidija Dragisic
A Superb Italianate Mansion in California, USA