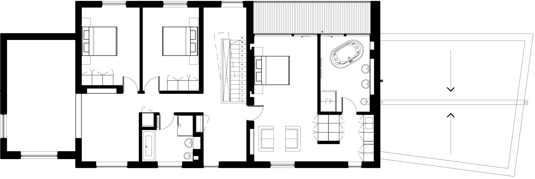
The Meadowview residence is a family home designed for a retired couple by Platform 5 Architects. It is located in rural Bedfordshire, England and features amazing gardens and beautiful pieces of furniture for the interior.
It is surrounded by greenery from all sides, the mature trees all around adding value to the site. It’s a contemporary place that features sustainable technologies such as rainwater recycling and ventilation system with heat recovery.
We don’t have to write many words about the house because the pictures will simply speak for themselves.
















More Similar Articles Like This
Exquisite Crossacres Mansion In Surrey, England
Loving Luxury at Mardan Palace Resort, Turkey
Boracay Resort & Spa in the Fascinating Philippines
The JKC1 House in Bukit Timah, Singapore
Extraordinary Constance Halaveli Maldives Resort
Beautiful Apartment in Stockholm for $1 Million
Best paint colors for the living room
Amazing Four Seasons Resort Bora Bora