This 3,445 sq ft home in Tapalpa, Mexico, was designed by a Mexican firm named Elias Rizo Arquitectos. Being placed in the middle of the forest, the architects had to integrate the surroundings into the concept of the house.
The first step was to use natural elements in the construction. They relied on stone and wood, two materials that match but also add texture to the exterior. To compensate the small difference in the level of the terrain – it is a little curved throughout the property – the house ends with a wood deck that is set on pillars.
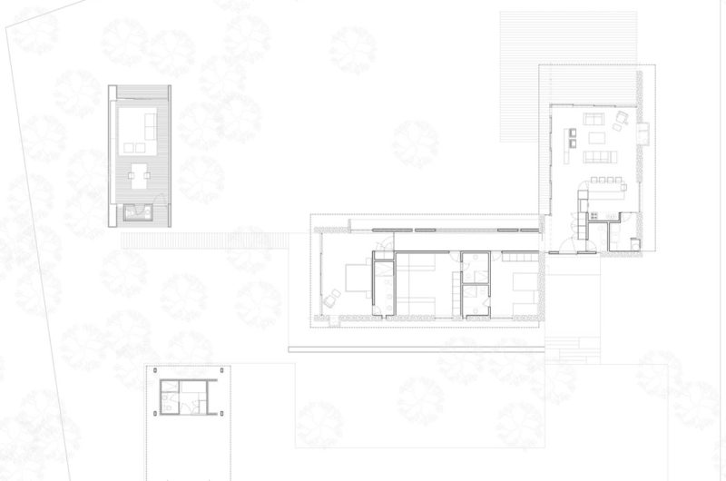
The L-shape of the house makes use of the natural light in every moment of the day. The social areas like the living and dinning place are set near the terrace and have glass windows. The bedrooms have stone external walls and the hallway connecting them has a wood wall with small glass windows to the outside.
This single level house has a simple design that outlines the natural beauty inside and outside the house. It’s the perfect setting to relax and read a book near the fireplace or have an afternoon with friends on the terrace.

























More Similar Articles Like This
Gorgeous And Spacious Home In Sunset Strip
Astonishing El Tovar by the Sea
Unique Click Clack Hotel In Bogota, Colombia
Lawn Care Tips, The Basics For Each Season
Best paint colors for the living room
Beach House CN – A Superb Contemporary Home in Peru
Superb Luxury Penthouse in Portomaso, Malta
Saguaro Palm Springs by Joie de Vivre