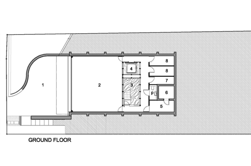
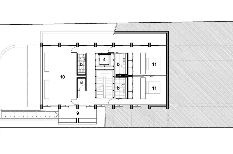
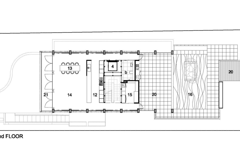
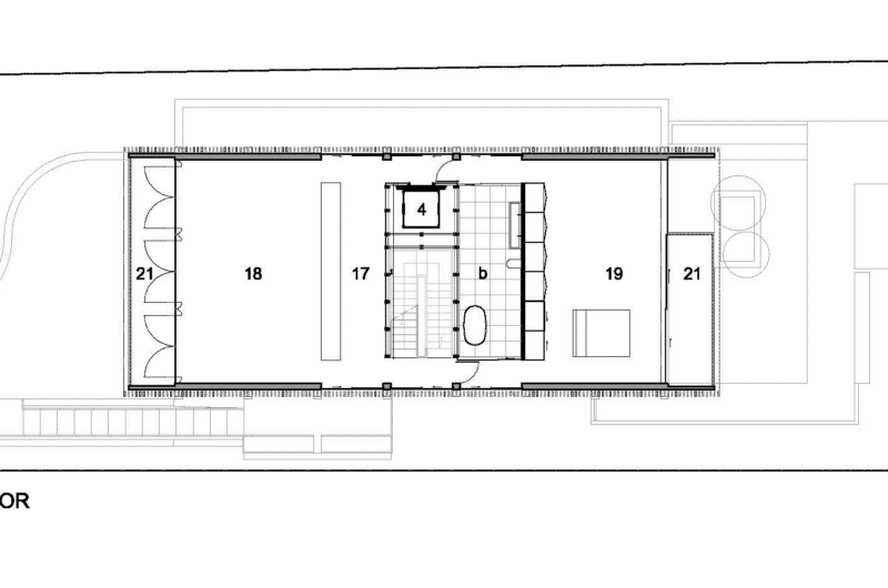
The Sentosa House is an eco-friendly home that helps one to recover the money invested when it bought it. Located in Sentosa Island in Singapore, this special residence was designed by the architect Nicholas Burns who used his skills to create a functional and perfectly habitable home. The most important element is the core around which is placed the whole structure of the house, providing structure, vertical circulation, services and besides these contributes at maximizing all baths and kitchen efficiency.
Its unique design permits reconfiguration to future needs so in this case walls can be erected whenever is needed. There were used only the best and the finest materials, such as recycled golden teak, fair faced concrete, stone and steel. Details were attentively finished to create the impression of a precious, cozy and welcoming environment. All these and a beautiful landscape will help you find your inner happiness.
Photos by Patrick Bingham-Hall





































More Similar Articles Like This
Loving Luxury at Mardan Palace Resort, Turkey
Santa Barbara Style Home in Paradise Valley, Phoenix
10 Different Types of Blue Paint Colors
Wonderful Yachting Club Villas at Elounda Beach by Davide Macullo Architects
70 Shades of Green: Benjamin Moore’s Vibrant Paint Colors
Gayton Road Residence by Paxton Locher Studio
Superb Luxury Penthouse in Portomaso, Malta
Marvelous Anantara Dhigu Resort