This “Satu House” project in Jakarta, Indonesia, challenged the architects at Christalline Artchitect. They had a limited space to create an enchanting effect.
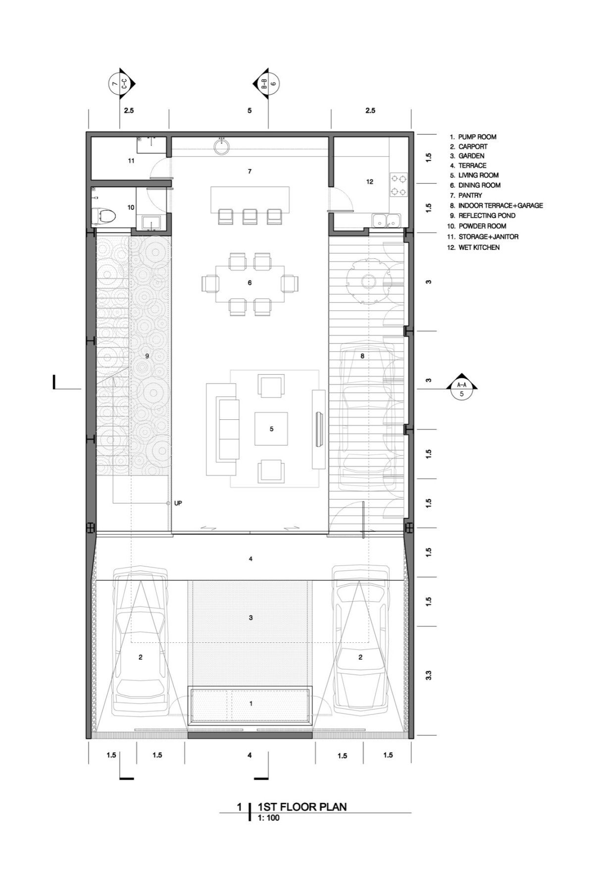
The concept for this house is unusual compared to other houses in the area. It defies the common zoning and places the social area of te house on the first floor and moves the service area to the third floor or even the roof. Another creative idea from the architects was to have a steel structure that would hang the bedroom level over the social area. To maximize the space, the cube-like areas on the second floor are cantilevered over the first floor.
The steel structure is a key element for this home and it was built in the workshop and then assembled there to make sure it was perfect for the site. The steel beams allowed the positioning of the ventilation system. The roof is made of glass to help fill the interior with the necessary natural light during daytime.
The bedrooms are placed on the second floor, and they are connected through an ingenious system of corridors. When leaving the doors opened, one big connected space appears because the bedrooms communicate.
One relaxing element was necessary for this home. To meet this requirement, the architects placed a reflective pond right under the stairs. The pond assures a decrease in the temperature during daytime. Another facility with multiple uses is the indoor terrace that can switch from the children’s playground to an indoor garage.
Photos by William Sebastian

























More Similar Articles Like This
Lawn Care Tips, The Basics For Each Season
Best paint colors for the living room
Exceptional Coronado Bay Front Estate in California
Vibrant Concrete Floor Paint Colors to Elevate Your Space
Beautiful Apartment in Stockholm for $1 Million
Outstanding Bodrum Houses in Yalikavak, Turkey
Shadowed Depths: Vintage-inspired Paint Colors for Dark Basements
Loving Luxury at Mardan Palace Resort, Turkey