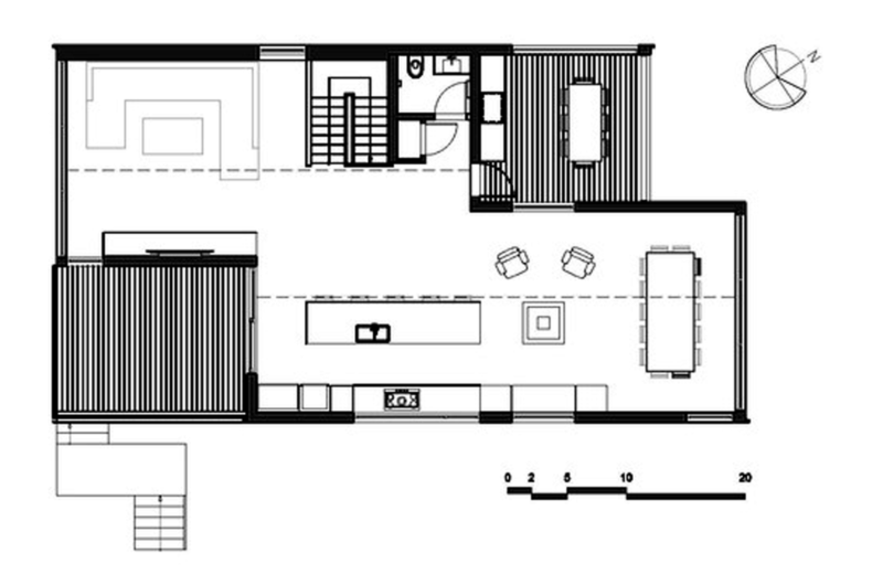
Sketched out by the skilled architects at MU Architecture, the Malbaie VIII residence in Cap-à-l’Aigle, Canada is a masterpiece in all regards. The designers that were in charge of shaping this lovely home are named Sabrina Charbonneau, Pierre-Alexandre Rhéaume, Jean-Philippe Bellemare, Charles Côté and Jean-Sébastien Herr, while the one in charge with the structural engineering was Chevrons Charlevoix. The residence was completed in 2013 and boasts 3,400 square feet of living space as well as 2 stories and irreproachable living arrangements throughout.
The plethora of wooden elements that were used in the construction process allowed the abode to give off a sense of rugged elegance without compromising on luxury. Accommodations include 4 en-suite bedrooms as well as separate living arrangements for children. The kitchen is spacious and includes state-of-the-art appliances and facilities, but it also represents an intricate part of an open plan area that boasts with its own lounge and stunning fireplace.
Photos by Ulysse Lemerise Bouchard























More Similar Articles Like This
Wonderful Yachting Club Villas at Elounda Beach by Davide Macullo Architects
Secluded Naladhu Island in Maldives
Lawn Care Tips, The Basics For Each Season
Contemporary BO House In Envigado, Antioquia, Colombia
Loving Luxury at Mardan Palace Resort, Turkey
Outstanding Bodrum Houses in Yalikavak, Turkey
The Superb Villa Verai on Phuket Island, Thailand
Superb Luxury Penthouse in Portomaso, Malta