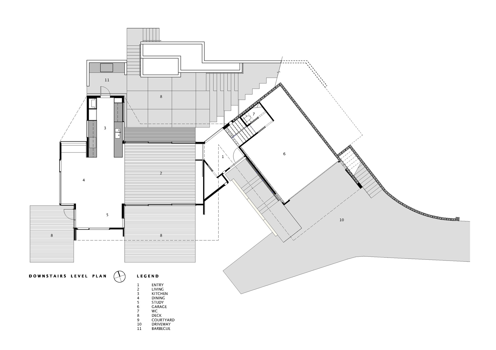
Featuring breathtaking views of the Wellington Harbor and of the Belmont Regional Park, the Korkoro House was built in 2014 in New Zealand by Parsonson Architects, and it accommodates a family with six children. It boasts an H-shaped plan that comprises outdoor spaces facing the north and the south, all of which are linked to a glazed central living room. The bedrooms were placed strategically in order to benefit from the most amazing views, while two children’s rooms are contained within the eastern part of the house around an activity area.
The residence is divided into two wings to the east and west. The eastern side has its bedrooms sitting above the garage, while the western part rises above the main living areas on the ground floor. In order to create a lively, colorful yet elegant interior design, the architects used bright shades of orange, yellow and blue in the social areas as well as neutral colors in the private spaces.
From the architect:
The housewas designed for a family of 6 with children of varying ages. It sits on an elevated sitewith expansive views over Wellington Harbour to the south and a narrower view down to a green valley at the lower end of the Belmont Regional Park to the north.
The owners wereattracted to the site because of the different views, outdoor area and connection to green space.
Because of its elevation and location the house is hit by both the southerly and northerly winds, we aimed to create a variety of outdoor spaces to offer options for sitting in, in the different winds and at different times of the day. We created an ‘H’ shaped plan containing both south and north facing outside spaces that are connected through the very glazed central living room.
The north facing outdoor area is excavated into the hillside so that when planted it will filter and encourage the wind to flow over the top. Bedrooms are positioned in a variety of different ways to pick up the different aspects of view, with 2 children’s rooms at the east end of the house located around an activity area as extra living space.
There are 2 main wings to the house with a split-level between. To the west bedrooms sit over the main living areas and to the east, bedrooms and smaller living space sit over the garage. Further to the west across the lawn is a guest house built at a later date.
Each wing of the house is wrapped in a corrugated color steel sheath in the form of a roof that extends down the east and west walls and meets over the link-way joiningthe 2 wings.
The owners have an interest in colour. Togetherwith the clientswe have explored brighter colours in the sparer living spaces and more subtle natural colours in the bedroom areas.
- Location: Wellington, New Zealand
- Architects in Charge: Gerald Parsonson. LBP: Andreas Cherry
- Project Year: 2014
- Photographs: Paul McCredie














More Similar Articles Like This
Lovelli Residence: Mediterranean-Style Dwelling in Bali
Beach House CN – A Superb Contemporary Home in Peru
Exceptional Coronado Bay Front Estate in California
Opulent Mandarin Oriental Hotel in Paris
Spectacular Rooftop Apartment by Innocad
Santa Barbara Style Home in Paradise Valley, Phoenix
Different Types Of Foundations For Summer Houses and Garden Buildings
The Superb Maradiva Villas Resort & Spa in Mauritius