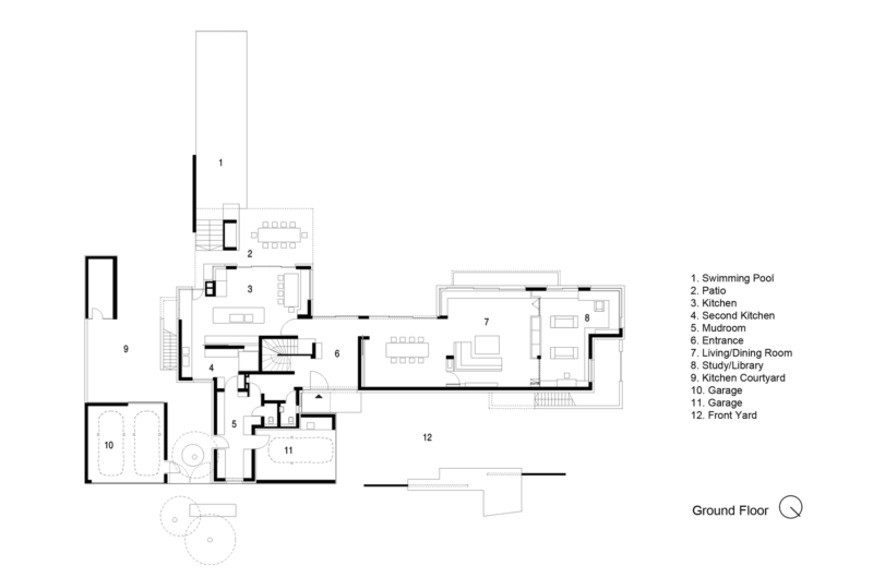
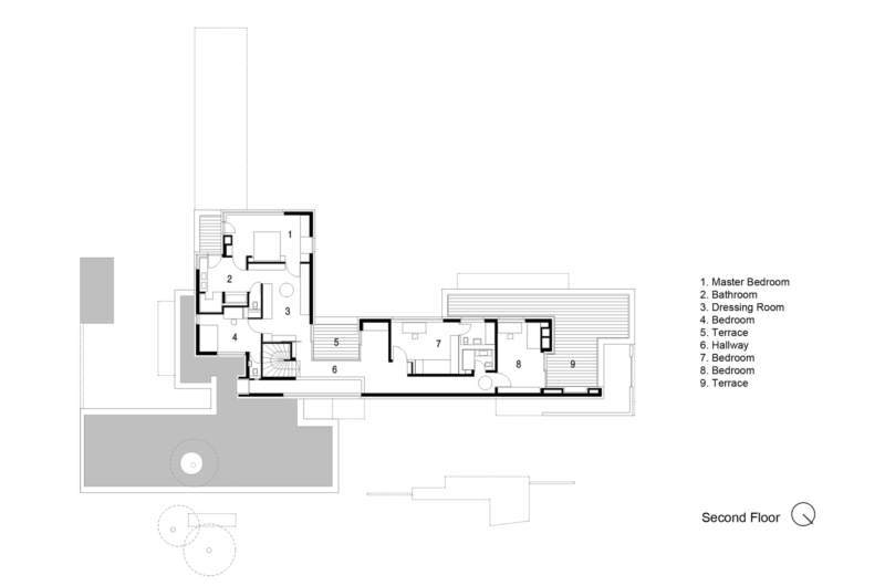
House I was completed in 2009 in Munich, Germany and was designed by a company named Stephan Maria Lang. Modern, spacious, luxurious and eco-friendly, House I flaunts a unique I-shaped layout that allows it to stand out effortlessly.
The abode is surrounded by nature and offers irreproachable living conditions for its lucky residents. It was built using natural, high quality materials that form an eye-catching, beautiful contrast. For example, the oiled natural oak and limestone elements contrast nicely with the white plaster found on the walls thus creating a resemblance to elegant Bauhaus-style homes. And since we’re talking about a contemporary residence after all, it’s worth mentioning that House I requires little energy to function properly thanks to a series of impressive technologies and state-of-the-art facilities.
Highlights include a thermal heat pump, controlled air ventilation, sun collectors and concrete core cooling and heating systems. Inside, a fabulous collection of high-end furnishings and tasteful décor elements help sustain an atmosphere of sophistication and fine taste. Outside, a carefully trimmed lawn and a large swimming pool stand ready to ensure memorable moments of relaxation and entertainment.













More Similar Articles Like This
Astonishing El Tovar by the Sea
Shadowed Depths: Vintage-inspired Paint Colors for Dark Basements
Beach House CN – A Superb Contemporary Home in Peru
10 Different Types of Blue Paint Colors
The JKC1 House in Bukit Timah, Singapore
Contemporary BO House In Envigado, Antioquia, Colombia
Tips for Choosing the Right Blue Paint Color for Your Dining Room
Santa Barbara Style Home in Paradise Valley, Phoenix