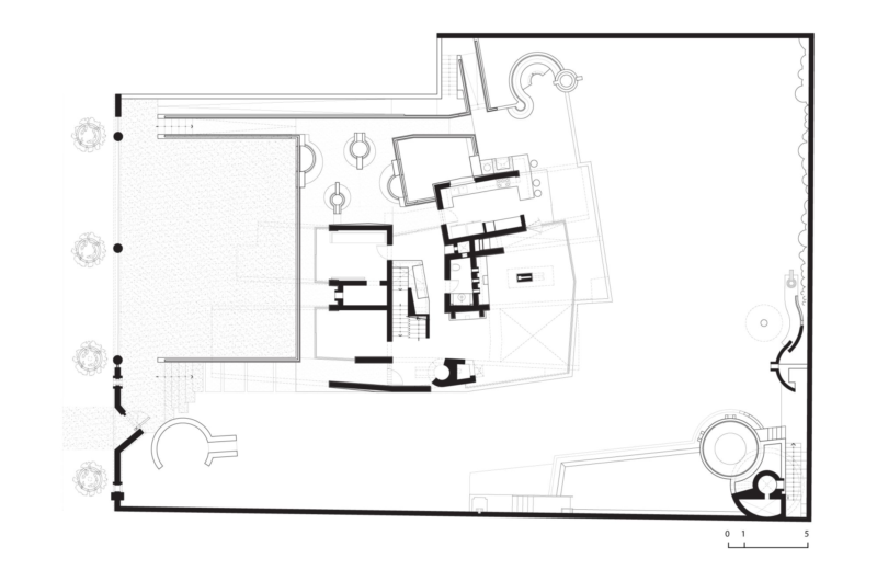
Featuring 5,920 square feet of living space as well as an intricate design, the House Forever was built in Lima, Peru by a company called Longhi Architects. This beautiful, modern home replaced an older and more modest residence that was found on the same lot, but it still retained a good amount of its former allure.
The imaginative minds that were behind this stunning project envisioned a large ancestral rock that was carved carefully in order to create the House Forever. Consequently, the interior aspects of the abode include fine examples of built-in furniture that are complemented by a stunning mix of natural and artificial materials such as wood and glass.
On top of this blackstone base, the architects designed and built 4 cantilever volumes that house the private areas such as the bedrooms. This upper level flaunts a crisp white layout and appears to be floating effortlessly on top of the black base in a splendid display of creativity and contemporary artistry.
Spectacular House Forever in Lima, Peru
























More Similar Articles Like This
Stunning Banyan Tree Ungasan Bali in Indonesia
Pure Perfection: Discover the Top White Paint Colors for a Flawless Décor
The Superb Maradiva Villas Resort & Spa in Mauritius
A Superb Italianate Mansion in California, USA
Dreamy Oceanfront Chateau In West Vancouver, Canada
Behr’s Brilliant Blues: 70 Shades of Stunning Paint Colors
Outstanding Bodrum Houses in Yalikavak, Turkey
Marvelous Anantara Dhigu Resort