The Vaucluse House is a beautiful contemporary home designed by MPR Design Group and is located in Sydney, Australia.
The idea of the project was to create a home for a family with children who could enjoy privacy and comfort and also to be able to host different social events without disturbing the tranquil familiar area.
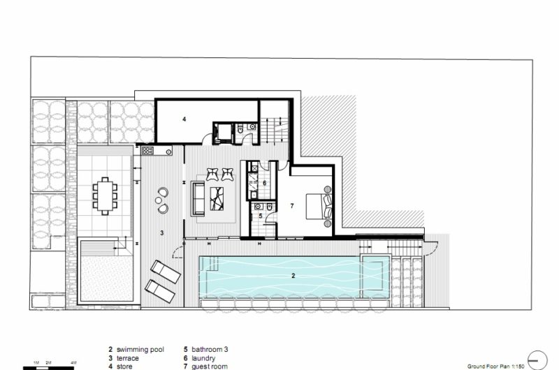
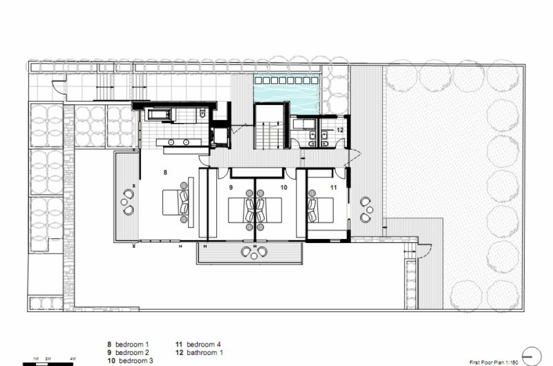
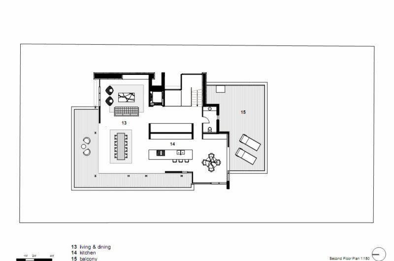
The large open spaces and the floor-to-ceiling windows give one the sense of an airy environment. It consists of three levels, each one of them being functional and adapted to the client’s preferences and needs.
Photos by Brett Boardman
















More Similar Articles Like This
The Superb Villa Verai on Phuket Island, Thailand
Gorgeous And Spacious Home In Sunset Strip
Boracay Resort & Spa in the Fascinating Philippines
Exploring the New World of Luxury Hoteling
Opulent Mandarin Oriental Hotel in Paris
Exquisite Crossacres Mansion In Surrey, England
The JKC1 House in Bukit Timah, Singapore
Wonderful Yachting Club Villas at Elounda Beach by Davide Macullo Architects