Even though it clearly boasts a modern design, the outstanding Residencia Itatiba somehow manages to blend seamlessly with its encircling natural environment, all thanks to the skill and dedication of a team of architects from RoccoVidal P+W.
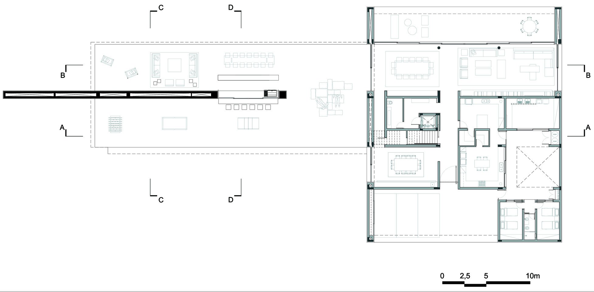
The architects completed this amazing home in 2013 in São Paulo, Brazil, and we have to admit that they did a phenomenal job regarding its interior and exterior arrangements. Starting off with the indoors, we encounter a clean, simple design based on natural wood elements, large windows and premium furnishings. Many of the social areas found on the ground floor are linked directly with the outdoors thanks to an open-space layout, while the private living arrangements feature views of this natural environment that can be admired from balconies or through large windows.
Outside, a large swimming pool with clean, blue water tempts with relaxation and entertainment opportunities, and it is flanked by a few lounging chairs that can be used to take in the sun on a hot afternoon. Residencia Itatiba also features its own small tree groove that boasts white gravel for a touch of modernism and minimalism.
Photos by Tuca Reinés



















More Similar Articles Like This
Boracay Resort & Spa in the Fascinating Philippines
Shadowed Depths: Vintage-inspired Paint Colors for Dark Basements
Pure Perfection: Discover the Top White Paint Colors for a Flawless Décor
Spectacular Luxury House in Sarasota, Florida by DSDG Inc. Architects
Amazing Four Seasons Resort Bora Bora
Seamlessly Apartment by the Beach by ZZ Architects
6 Garden and Lawn Tips to Get Ready for Spring
70 Shades of Green: Benjamin Moore’s Vibrant Paint Colors