The South Slope Townhouse is a modern housing project that was completed in 2014 by Etelamaki Architecture. It is located in Brooklyn, New York, and it includes a three-story building that used to feature a much less impressive look.
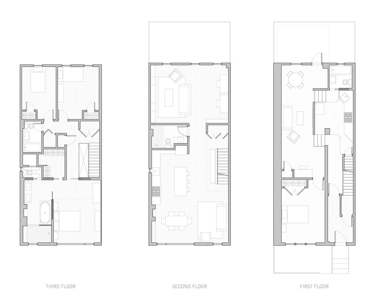
Currently, its top two floors incorporate a duplex for the owner, while the ground floor is a rental. Still, even though the facade was redesigned completely, it still retains some traces of its former look thanks to the careful placement of the windows and the materials chosen for the exterior cladding. Speaking of cladding materials, the most important one is corrugated galvanized steel, which was selected for its ability to mix with the eclectic architecture exhibited by the adjacent buildings. It was also quite affordable.
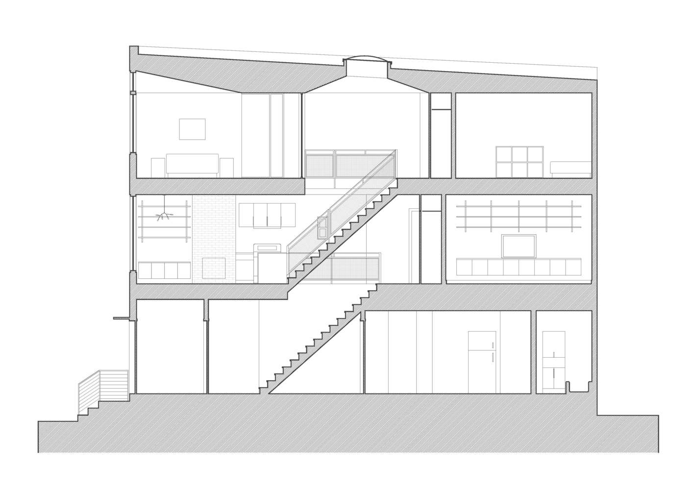
As for the interiors, they also echo the original design, especially since an existing brick chimney was left intact in order to serve as an organizing element for the master bedroom on the third floor and the living room on the second one. The second floor also includes a kitchen, a small seating area and a dining area. It can be accessed via an interior staircase.
From the architect:
Situated at the edge of ever-expanding gentrified Brooklyn in South Park Slope, this renovation maximizes the potential of a non-descript building shell, and limited budget, to create a modern, light filled home that acknowledges the building’s past, while envisioning the neighborhood’s future. The top two floors of a three story building were converted to an owner’s duplex, with a rental on the ground floor, and an existing fire escape was removed from the façade.
The home is located on an eclectic block consisting of early 1900s multi-family buildings of similar or smaller size, mixed with several recently constructed larger condominium buildings. The lack in uniformity on the block presented an opportunity for a bold façade design. Traces of the original facade are retained in the rhythm of the window placement, and in the geometry of the exterior cladding materials.
The primary cladding material-corrugated galvanized steel-was selected to blend in to the gritty, eclectic architecture adjacent to the site, as well as for its affordability. Framed accent panels of perforated aluminum installed in front of painted red panels provide complexity and balance to the façade. Red accents were used to frame the entry canopy and the frosted glass window in the Master Bathroom shower.
The Interior spaces equally emphasize traces of the original structure. An existing brick chimney breast became the organizing element for the primary living space on the lower level of the owner’s duplex, as well as the Master Bathroom on the top floor.
A stair up from the ground floor enters into the center of the main living floor of an owner’s duplex. This floor consists of an open family space at the front, comprised of a kitchen, dining and small seating area. This space acts as the primary gathering space for the young family of four-cooking, eating, practicing music, the chaos of the morning routine, etc. The rear portion of the floor is another separate, but singular space dedicated to more quiet, private activity, and includes a work space and area for watching TV. The two areas are separated by a closet and bathroom.
The second floor consists of two bedrooms at the rear of the house with a shared bathroom, and the Master Suite at the front. The oversized opening between the Master Bedroom and Master Bedroom can be divided by a custom steel and glass pocket door which, when completely open, blurs the separation between the two spaces. The toilet is contained in a separate, private compartment, allowing the other functions of the bathroom to become more a part of the bedroom itself.
Off the shelf materials, cabinets, and fixtures are complemented by inexpensive custom materials to create a complex, dynamic space, on a limited budget.
Architects: Etelamaki Architecture
Location: Brooklyn, NY, United States
Architect in Charge: Jeff Etelamaki
Design Team: Jeff Etelamaki, Mayumi Tomita, Shenier Torres,
Project Year: 2014
Photographs: Mikiko Kikuyama
Structural Engineer: Blue Sky Designs Consulting Engineer
Contractor: Dariden Construction Management LLC














More Similar Articles Like This
Extraordinary Constance Halaveli Maldives Resort
Lovelli Residence: Mediterranean-Style Dwelling in Bali
Pure Perfection: Discover the Top White Paint Colors for a Flawless Décor
Dreamy Oceanfront Chateau In West Vancouver, Canada
Exceptional Coronado Bay Front Estate in California
Beautiful Apartment in Stockholm for $1 Million
Saguaro Palm Springs by Joie de Vivre
The Superb Villa Verai on Phuket Island, Thailand