This is a renovation plus extension project, carried out by Coop15, a Seattle-based studio. The house is called Queen Anne Mid-Modern, and it is located in Seattle, Washington. The original esidence was designed by Paul Hayden Kirk, a much appreciated architect of the past century.
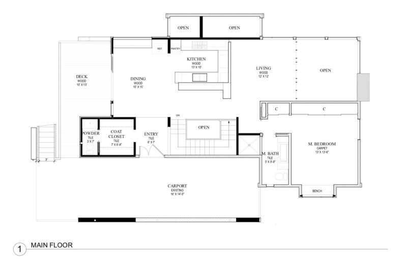
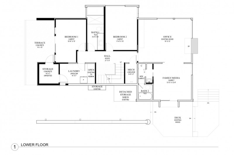
The owners are a family with two children, so they needed extra space for family activities, and more elbow room for the 6’7” father. This was obtained by expanding the plan, adding an extra bedroom on the lower level, a bathroom for the kids, expanding the living/kitchen/dining area, and completely changing the staircase.
You can admire the end result in the gallery below. We really love the new home, both outside and inside. The interiors are large and inviting, with warm colors and cozy furnishings – just perfect for a true family home.
Photos by: Will Austin
















More Similar Articles Like This
Unique Click Clack Hotel In Bogota, Colombia
10 Different Types of Blue Paint Colors
Boracay Resort & Spa in the Fascinating Philippines
Exceptional Coronado Bay Front Estate in California
Spectacular Luxury House in Sarasota, Florida by DSDG Inc. Architects
Shadowed Depths: Vintage-inspired Paint Colors for Dark Basements
Vibrant Wood Tones: Explore a Spectrum of Spray Paint Colors!
The JKC1 House in Bukit Timah, Singapore