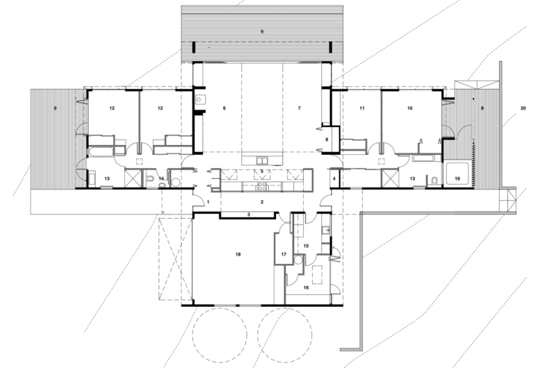
Completed in 2012 by Harris Builders after an amazing design by Guy Herschell Architects, this residence is known as the Radman Brown House. It is a 3,121 square foot contemporary house in Richmond, New Zealand, designed for a couple who wanted a family home that would be excellent for children and which could be easily altered in the future.
The architects were challenged to work on a tight budget and offer the best in terms of architectural principles, as well as sustainability. In order to encourage quality family time, the residence was built around a central living area that calls all members together every day. Large windows ensure a permanent connection between indoor and outdoor spaces, while inviting natural light inside.
Photos by Guy Herschell




















More Similar Articles Like This
Exquisite Crossacres Mansion In Surrey, England
Unique Click Clack Hotel In Bogota, Colombia
70 Shades of Green: Benjamin Moore’s Vibrant Paint Colors
These Top Tips Will Help You to Turn Your Garden into the Ultimate Glamping Site!
Different Types Of Foundations For Summer Houses and Garden Buildings
Tips for Choosing the Right Blue Paint Color for Your Dining Room
Exploring the New World of Luxury Hoteling
Spectacular Rooftop Apartment by Innocad