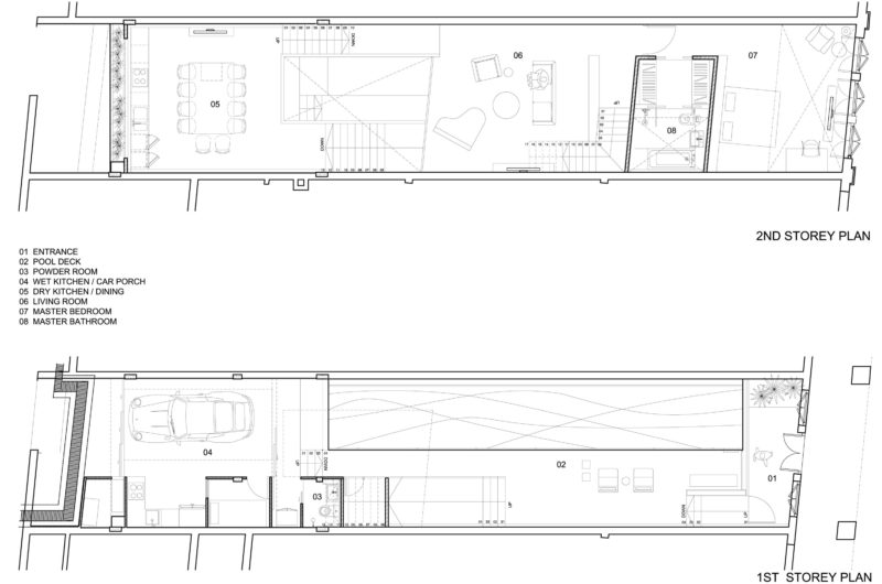
Part of the Lorong 24A Shophouse Series, for which seven architects were invited to show their skills by modifying a number of properties in the Geylang neighborhood, Singapore, the Pool Shophouse is a stunning project signed by FARM and KD architects. They converted a 1920s shophouse into a stunning modern residence whose main focus is the huge indoor lap pool that dominates the ground floor.
The extension of the house was conceived more as an “insertion”, meaning that the architects wanted to integrate the new elements with the old, and avoid the feeling of incompatibility between the two. Space continuity was a must right from the beginning, and the final result is characterized by a harmonious dialog between old and new.
Photos by: Jeremy San

















More Similar Articles Like This
Gayton Road Residence by Paxton Locher Studio
Different Types Of Foundations For Summer Houses and Garden Buildings
Vibrant Wood Tones: Explore a Spectrum of Spray Paint Colors!
Dreamy Oceanfront Chateau In West Vancouver, Canada
Beautiful Apartment in Stockholm for $1 Million
The JKC1 House in Bukit Timah, Singapore
How Seattle Lawn Care Service Deals With Overgrown Lawns
Boracay Resort & Spa in the Fascinating Philippines