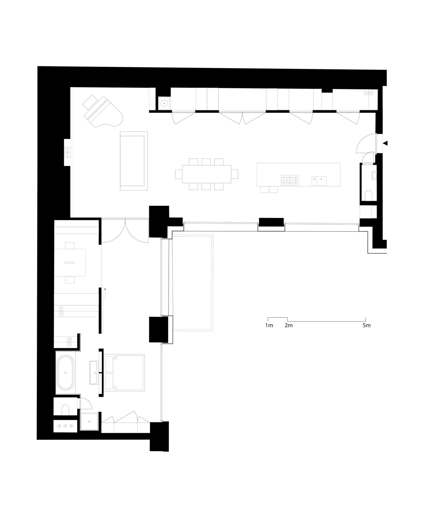
This residence in Berlin, Germany was designed by Ester Bruzkus and Patrick Batek for an active photographer and his partner. The loft was completed in 2014 and occupies a former hat factory. The building’s industrial heritage is echoed through an exposed ceiling structure and gray concrete floors, while built-in furnishings with matte surfaces help hide certain elements from sight for a clean, welcoming look. The living room, dining area and kitchen are all a part of the same open space that offers plenty of socialization and relaxation opportunities.
The private living areas are sheltered by a double doorway, and they flaunt oak parquet as well as concrete and matte paint finishes. The parquet is also used for the paneling of the bedroom and bathroom walls, and it adds a touch of warmth and naturalness.
From the architect:
Ester Bruzkus and Patrick Batek have designed a concise and clear-cut residential loft for an internationally active photographer and his partner in a former hat factory in Berlin-Kreuzberg.
A well-lit space was created that refers to the industrial history of the building in its smooth gray concrete floors and its exposed ceiling structure. At the same time, cleverly designed built-in furniture with matt surfaces conceals from view anything that might disturb the eye. The kitchen, dining and living zones form one spacious unit, leading off with a large kitchen block made of green forest marble. Once again, here there is a place for everything: all kitchen equipment is neatly concealed from view under the kitchen block, while a long sideboard with plenty of shelf space serves as a modern larder.
The private living zone is marked by a double doorway. Here the concrete and matte paint finishes are complemented by warm oak parquet. But rather than being a floor material, here the parquet is used as panelling on the bedroom to bathroom wall, continuing through to also clad the bathroom walls.
Architects: Bruzkus Batek Architekten
Location: Berlin, Germany
Design Team: Ester Bruzkus, Ulrike Wattenbach
Area: 165.0 sqm
Project Year: 2014
Carpenter: Holzmanufaktur Richter
Concrete Flooring: Lennart Frank
Green Forest Marmor: Company: Steinzeit
Toilet and Washbasin: Duravit
Fittings: Zuretti











More Similar Articles Like This
Superb Luxury Penthouse in Portomaso, Malta
Saguaro Palm Springs by Joie de Vivre
Exquisite Crossacres Mansion In Surrey, England
The JKC1 House in Bukit Timah, Singapore
Secluded Naladhu Island in Maldives
Best paint colors for the living room
Dreamy Oceanfront Chateau In West Vancouver, Canada
Benjamin Moore Exterior Paint: Vibrant Shades for a Striking Home