Casa Camino is a two-story home designed by Parque Humano. This beautiful house is situated in Chihuahua, Mexico, on a 2,200-sq.m. (23,680-sq.ft.) semi-arid climate plot.
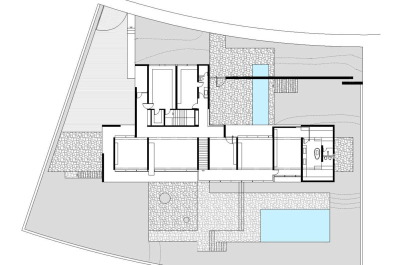
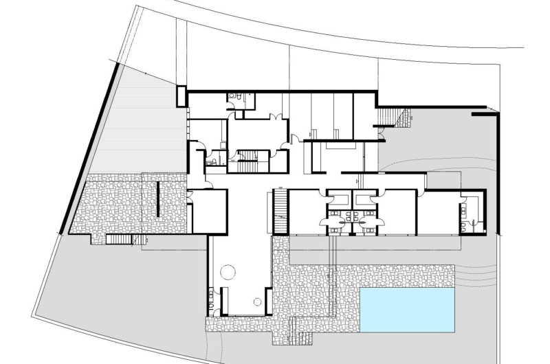
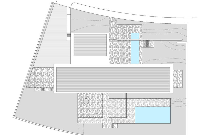
The house was strategically built to face the city and the beautiful hills of the valley. The architecture is simple, comprising a semi-buried volume and a compact volume for the house. It has a solid steel-and-concrete structure, with stone outside faces, which perfectly integrate the building into the surroundings.
The three bedrooms and a multipurpose room are situated at the basement level, while the dining and living space, the studio, the kitchen and the master bedroom are on the main floor. The architects managed to blur the inside-outside boundary, creating continuity between the two spaces.
Photos by: Paul Rivera – Arch Photo
Via ArchDaily




















More Similar Articles Like This
Wonderful Yachting Club Villas at Elounda Beach by Davide Macullo Architects
Outstanding Bodrum Houses in Yalikavak, Turkey
Tips for Choosing the Right Blue Paint Color for Your Dining Room
Superb Luxury Penthouse in Portomaso, Malta
Secluded Naladhu Island in Maldives
Loving Luxury at Mardan Palace Resort, Turkey
Stunning Sustainable Home in Costa Rica by SPG Architects
The Superb Maradiva Villas Resort & Spa in Mauritius