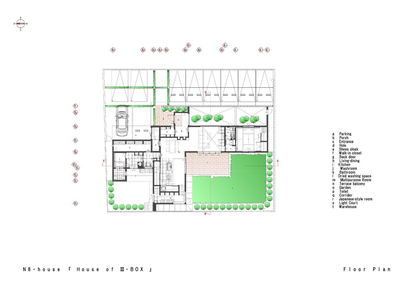
The home that you’re admiring right now was designed by Masahiko Sato and was completed in 2013 in Nagasaki, Japan. It flaunt s a contemporary look and was sketched out with comfort and privacy in mind – traits that are highly sought after in all modern houses. The front door is made out of wood and gives off a sense of warmth and naturalness. The entryway leads directly into the living room, which offers views of the courtyard through a series of glass panels.
A private garden is surrounded by the living room, dining room and kitchen, all of which are illuminated naturally by a skylight inserted into the first floor’s roof. The kitchen also incorporates a study, which features a long desk and is located adjacent to the staircase. Upstairs, the architects placed the bedrooms, all of which boast high-end amenities.
From the architect:
The concept of this designing is to ensure the privacy and safety, and also create a living space which makes family members happy and easy. At night, the shadow of houses will change with the light of the moon and stars, just like expressions on people’s face.
The wooden front door gives out a warm atmosphere, going through it, one would step into the living room and see the courtyard through a huge class, which gives people more senses of nature in daily life.
Around the privacy garden, which places against living room, there are the kitchen and dining room. In living room, there is a skylight on the ceiling of the 1st floor, which brings the nature light into house.
Inside kitchen, there is a study placed on the storage besides the staircase. It includes a desk of 1300mm length. The staircase goes to the 1st floor. On the 1st floor, there are bedrooms for all family members.
Looking from outside, the shape of the house is not like usual 2-floors house. So, it looks quite special. This design make the best use of place, which tighten the arrangement of rooms, it enable a better chance of communication among family members. Each room is independent of another, and perfectly blending with the nature.
Architects: Masahiko Sato
Location: Nagasaki, Nagasaki Prefecture, Japan
Project Year: 2013
Photographs: Toshihisa Ishii















More Similar Articles Like This
The Sophisticated Casa Villa Flamingo in Spain
Extraordinary Constance Halaveli Maldives Resort
The JKC1 House in Bukit Timah, Singapore
Exceptional Coronado Bay Front Estate in California
Vibrant Concrete Floor Paint Colors to Elevate Your Space
Outstanding Bodrum Houses in Yalikavak, Turkey
The Superb Villa Verai on Phuket Island, Thailand
Saguaro Palm Springs by Joie de Vivre