San Lorenzo residence is a contemporary home located at the end of a canyon road,and was designed by Mike Jacobs Architecture for a client in Los Angeles, California, USA.
Aside from the fact that the house itself is a genuine work of art, it is emphasized by the surrounding landscapes- a private garden and manicured fairways of a golf course that add value to the property.
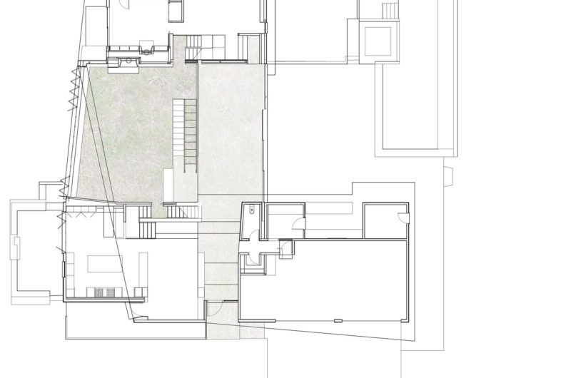
The house is organized by two interlocking “L-shaped” as it follows: the first “L-shape”, which is an open enclosure and veranda, includes the garden, the pool, the living rooms and the theater, while the second “L-shape”, which is an opaque enclosure, features the private bedrooms and the service spaces.
The sliding doors that open to the south and the windows facing north create the connection with the exterior and also cool the house and draw fresh air to naturally ventilate the house.
Photos by Michael Wells






















More Similar Articles Like This
Green Gables Home In Fairfield, Connecticut, United States
Stunning Banyan Tree Ungasan Bali in Indonesia
Stunning Sustainable Home in Costa Rica by SPG Architects
The Superb Maradiva Villas Resort & Spa in Mauritius
Lawn Care Tips, The Basics For Each Season
Boracay Resort & Spa in the Fascinating Philippines
5 Ways to Turn Your Yard Into a Fancy Space
Unique Click Clack Hotel In Bogota, Colombia