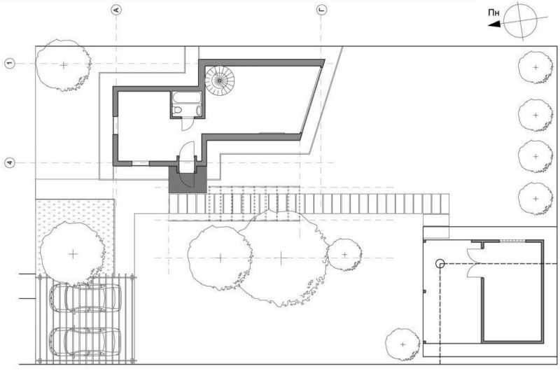
Jack’s House is a lovely contemporary residence that was created by architect Sergey Makhno using a limited budget. The project consists of two structures with similar sizes, located in Kiev, Ukraine. This is an excellent example of what a wonderful contemporary home can someone build with only $100,000 at disposal.
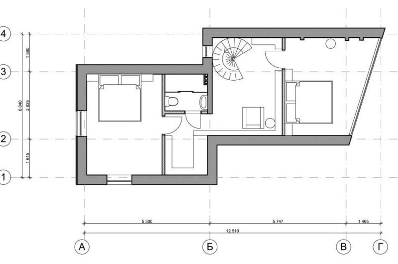
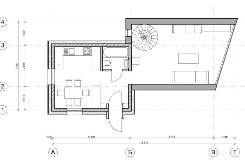
Aside from the 1,130-square-foot residence, the property also includes a nice garden and a barbeque area. The house features two levels: a ground floor holding the living room with fireplace, a bath and the kitchen, and a second floor that houses two bedrooms, a library and a toilet room.






































More Similar Articles Like This
10 Different Types of Blue Paint Colors
Santa Barbara Style Home in Paradise Valley, Phoenix
Dreamy Oceanfront Chateau In West Vancouver, Canada
Opulent Mandarin Oriental Hotel in Paris
Best paint colors for the living room
Lovelli Residence: Mediterranean-Style Dwelling in Bali
Exploring the New World of Luxury Hoteling
Saguaro Palm Springs by Joie de Vivre