LOFT above JAFFA is the result of a successful renovation project that was carried out by Henkin Shavit Architecture & Design. The apartment can be found within a neighborhood called Jaffa in Tel Aviv, Israel, and it was completed in 2014.
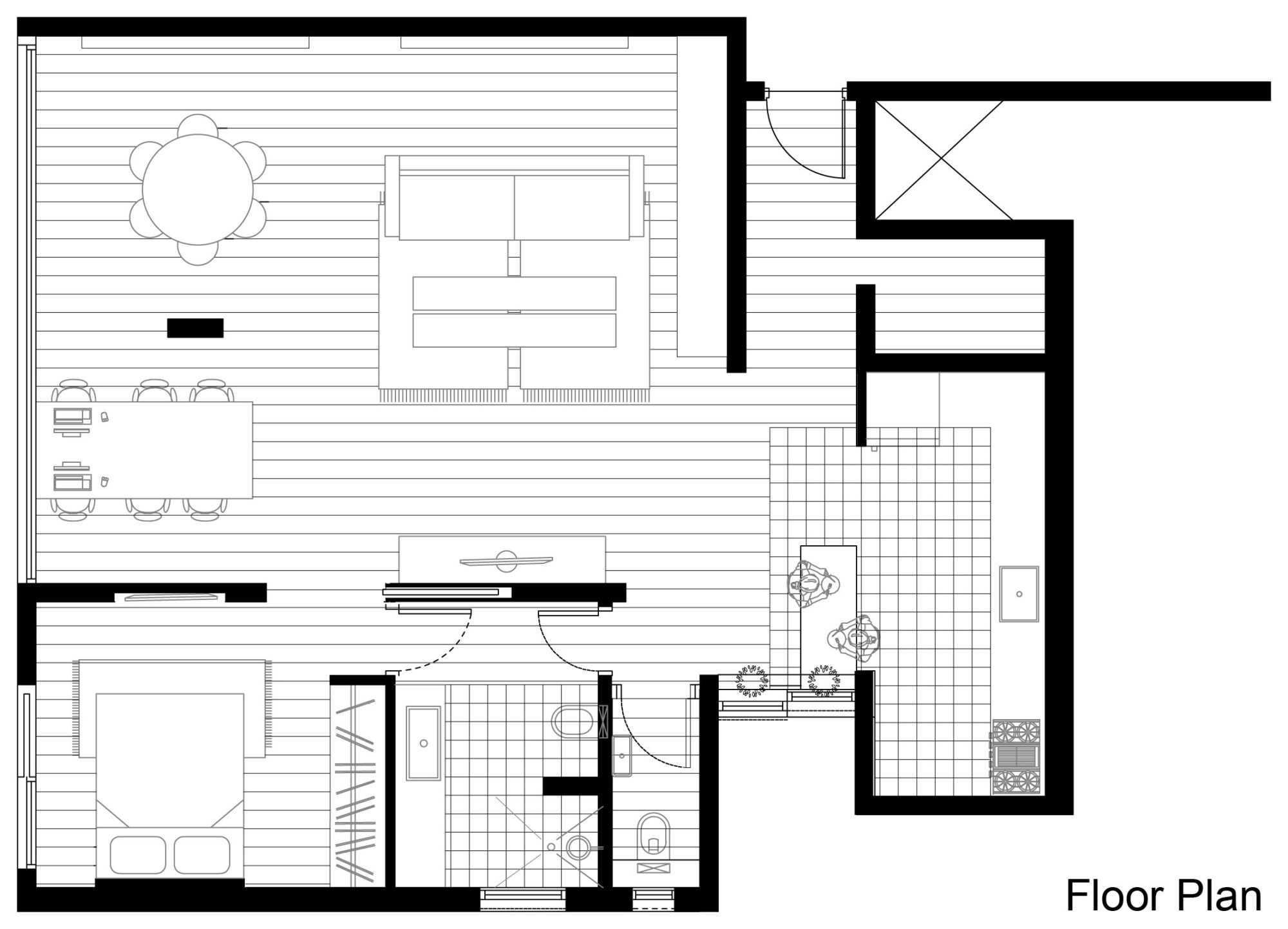
The renovation involved the demolition of a few interior walls and the replacement of the original floor with a new Gushen Pine board wooden deck that hides the new plumbing systems as well as the electrical systems. The loft is split into two main areas, one of which includes the living room and a work area, while the other one houses a bedroom and a bathroom. The work and dining spaces are subtly defined by a freestanding column.
The loft was designed to accommodate a graphic designer and an interior designer, which is why it boasts a mix of working facilities and residential spaces.
Some of the doors and furnishings for this comfortable loft were actually purchased at a flea market, including the bathroom doors and the round dining table.
From the architect:
The couple, an interior designer and a graphic designer, lives in the apartment for two years. The loft is based on the 12th floor of a prefabricated exposed concrete building built in the early 60’s and it occupies approximately 95 sqm. From the loft, found at the top of the building in southern Jaffa, Tel Aviv, there are some spectacular views of the Mediterranean Sea and the ancient neighborhoods of Jaffa and Tel Aviv.
The loft was designed by the office of the Zohar Shavit and his partner Irit Henkin, who decided to demolish the interior walls, also, the old floor was dismantled and a wooden deck made of Gushen Pine board was laid and allowed the concealment of the new electricity and plumbing infrastructure. The pine deck was colored in light grey oil paint which integrates with the grey sky and sea in the winter.
The loft which combines an interior design and architectural studio, with a residential interior, is divided into two main parts: A large space which includes a living room and a spacious work area and in front of it, a bedroom, bathroom and toilet. The free standing column helps define the various spaces, separating the living room and work area.
The dining table is in fact a seating bar, a sniper weapon cleaning table; the table is placed on a three-dimensional patterned concrete floor that defines the scope of the kitchen from the rest of the loft space. The work area’s desk is made of oak and was designed by the studio. Crystal lamps from the 50’s were hung on the bare concrete column. A round dining table, purchased in Jaffa’s flea market, is positioned Next to the column, on its other side, and around it are yellow Eames chairs. Dror’s and Shavit’s final thesis from their academic years, are leaned against the living room wall. A large industrial aluminum profiles library is also prominent in the living room, the library was built around the air conditioner and it contains an archive, a library and a presentation of the studio’s projects. The bathroom and toilet doors were purchased at Haifa’s flea market; the doors were dismantled from a 20’s eclectic building and were renovated and refurbished by the studio. The shower floor was designed by Dror, inspired by a Cuban pattern. The sink in this area was placed on a clear pine surface that was to the legs of a diamonds polish machine. Irit Henkin and Zohar Shavit established their office 10 years ago and since then have planned and designed numerous residential projects.
Photos by Aviad Bar-Ness













More Similar Articles Like This
A Superb Italianate Mansion in California, USA
Exquisite Crossacres Mansion In Surrey, England
Amazing Four Seasons Resort Bora Bora
Seamlessly Apartment by the Beach by ZZ Architects
Saguaro Palm Springs by Joie de Vivre
Vibrant Wood Tones: Explore a Spectrum of Spray Paint Colors!
The Superb Maradiva Villas Resort & Spa in Mauritius
Gayton Road Residence by Paxton Locher Studio