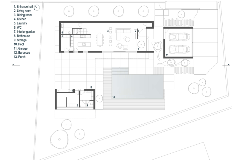
The Villa Nova in Farmalicao located in Braga, Portugal, was completed in 2012 by Arquitectura.501. Its L-shaped form is a very convenient one because it provides excellent solar orientation, offers great views of the landscape and frees a lot of space for the swimming pool, the yard, the garden and for the porch.
Because of its south orientation, the house is thermally comfortable all year long due to the glazing façade that works as a shading flap during the warm months.
The exterior thermal isolation system (ETICS) was considered to be the most appropriate coating for the construction but for the social volume it has been chosen a special coating which confers a contemporary and avant-garde style.























More Similar Articles Like This
70 Shades of Green: Benjamin Moore’s Vibrant Paint Colors
Lovelli Residence: Mediterranean-Style Dwelling in Bali
Loving Luxury at Mardan Palace Resort, Turkey
These Top Tips Will Help You to Turn Your Garden into the Ultimate Glamping Site!
Heavenly Lily Beach Resort & Spa In Huvahendhoo, Maldives
6 Garden and Lawn Tips to Get Ready for Spring
Marvelous Anantara Dhigu Resort
Exploring the New World of Luxury Hoteling