Inspired in its design by the unique architecture of summerhouses in Quebec, the L-House flaunts 1,506 square feet of living space and was built in Fossambault-sur-le-Lac, Canada. It was sketched out by CCM2 Architectes and was constructed using prefabricated parts that reduce local site pollution while allowing the abode to blend with its surroundings. The residence was built for a young family and is complemented by a separate guesthouse.
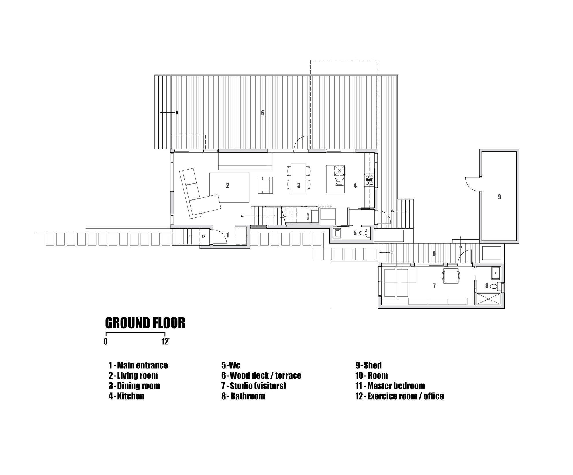
The first level includes the main living area, which is flooded with natural light throughout the day, while the second floor incorporates a washroom, a library, the bedrooms and a pair of balconies that provide exceptional views of Lake St.Joseph. The master bedroom, which happens to be the most comfortable room in the house, also benefits from views of an outdoor deck.
L-House was completed in 2012, and it is a perfect example of modern architecture and design.
From the architect:
Right beside a majestic birch stands the L-House. The summer cottage, which has the same utility as a principal residence, is perfect for the owners’ young family. There is also a guesthouse right behind for guests’ privacy. On the first floor, the family living area is filled with great luminosity. On the second floor, a library, a large washroom, the bedrooms and two balconies provide the owner with a great view over the St.Joseph lake.
The master bedroom and its balcony projection overlook a section of the patio which spreads along the residence, defining two living spaces according to the needs. The guesthouse offers a lighten rest area. The architectural concept is defined by a contemporary reinterpretation of the vernacular architecture of Quebec’s summer cottages, especially neighboring houses.
The fragmentation of the main volume, in projection and recessed, maximizes interior and exterior living spaces while minimizing the building’s presence on the site. The construction made of prefabricated parts help to reduce disturbances and construction site pollutants, while providing to the residence a quality of construction above standards. The material selection has been done to assure the integration of the contemporary L-House to the natural environment and to the neighboring houses.
Architects: CCM2 Architectes
Location: Fossambault-sur-le-Lac, QC, Canada
Project Manager: Mathieu Morel
Conception team: Mathieu Morel, Dave Tremblay, Lydia Perron, Yan Grégoire
Area: 140.0 sqm
Project Year: 2012
Photographs: Stéphane Groleau , Stephanie de la Ronde
Contractor: Goscobec inc.
Client: Mathieu Morel











More Similar Articles Like This
The Superb Villa Verai on Phuket Island, Thailand
5 Ways to Turn Your Yard Into a Fancy Space
Vibrant Concrete Floor Paint Colors to Elevate Your Space
A Superb Italianate Mansion in California, USA
Marvelous Anantara Dhigu Resort
Loving Luxury at Mardan Palace Resort, Turkey
Secluded Naladhu Island in Maldives
10 Different Types of Blue Paint Colors