Completed by LSA Architects studio, Cape Schanck Residence is a two-story modern home located in Melbourne, Victoria, Australia.
The owner wanted a place where he could relax with his family and friends, and enjoy his long held passion, golf. The home resembles a modern gentleman’s residence, which includes three golf courses accessible by golf buggy.
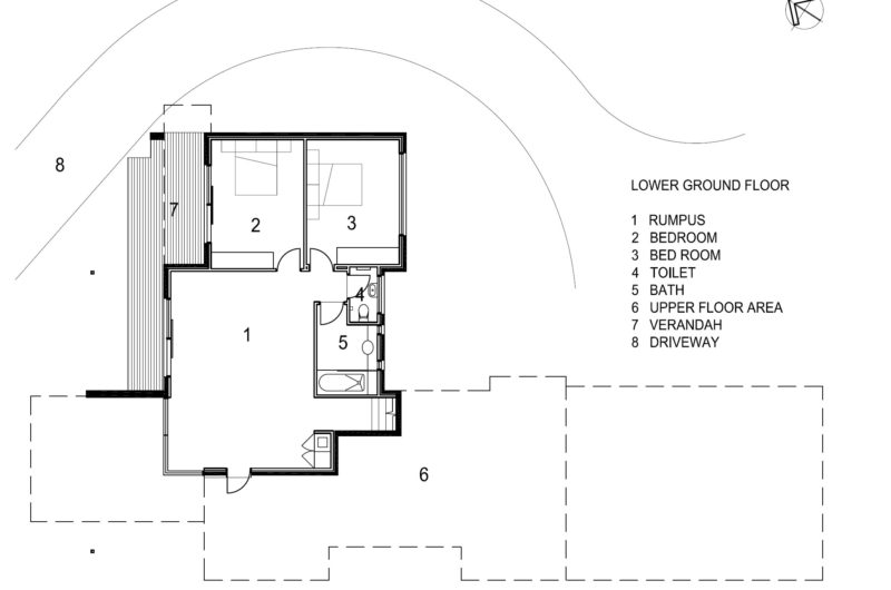
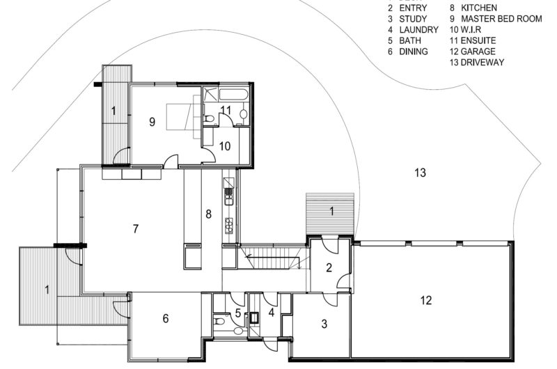
The site, which is in fact a sand dune, created some problems for the architects, who nevertheless managed to perfectly integrate the building into the surrounding area. To accomplish this, they also used muted colors for the external color palette. The residence was elevated enough to offer magnificent views. The top level includes all the necessary amenities, while the lower level features accommodation for guests.
Photos by: UA Creative
















More Similar Articles Like This
How Seattle Lawn Care Service Deals With Overgrown Lawns
Different Types Of Foundations For Summer Houses and Garden Buildings
Marvelous Anantara Dhigu Resort
These Top Tips Will Help You to Turn Your Garden into the Ultimate Glamping Site!
Outstanding Bodrum Houses in Yalikavak, Turkey
Plain Geometric Residence Designed by Lidija Dragisic
Beach House CN – A Superb Contemporary Home in Peru
Vibrant Wood Tones: Explore a Spectrum of Spray Paint Colors!