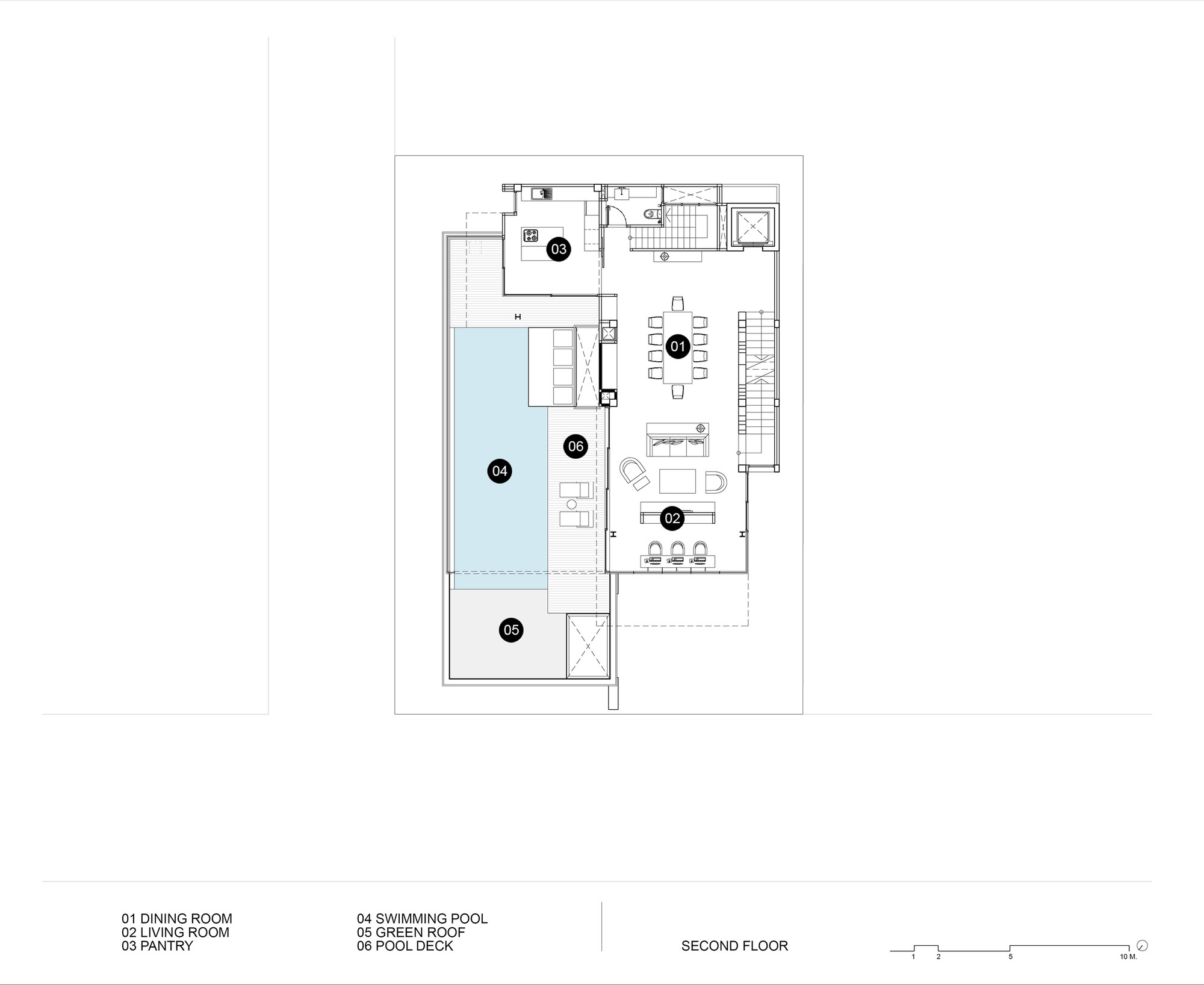
Lavish and spacious, Joly House offers 8,072 square feet of living space and was designed by Stu/D/O Architects. It is located in one of the most popular areas in Bangkok, Thailand, and it features a total of three stories. Due to the fact that numerous shophouses flank the residence at its street level, the architects decided to insert the primary living areas on the second floor and the service spaces at ground level.
At the entryway, the residents and their guests are greeted by several skylights that allow natural light to flow throughout the abode while offering views of the swimming pool directly above. As the day goes by, the light flowing through the skylights changes color. The house was put together using a partial steel frame and reinforced concrete elements. The facade boasts natural materials such as glass panels, exposed concrete and wood louvers.
The third floor incorporates the bedrooms, which flaunt timber slats cladding for improved privacy. This upper facade filters sunlight and ensures thermal comfort during the warm summer months. Furthermore, some of the slats can be opened thanks to a series of special panels that facilitate natural ventilation.
From the architect:
This three-story house for a family of four has a footprint of 250 square meters and a height of 11 meters. It is located on the street corner in one of the most exquisite and densely populated residential areas of Bangkok. Flanked by rows of shophouses,main living spaces are elevated to the second floor to improve the visual conditions and allow rooms for service spaces on ground. Upon arrival, one is greeted with the skylights, through which shown the rippling strips of caustic patterns resulting from the interplay between lights and water of the swimming pool above. The changing time of the day contributes to the changing color of lights, making this parking space- the arrival space, more dynamic.
Built mainly with reinforced concrete structure and a partial steel frame, the project’s exterior is comprised of natural materials such as wood louver, glass panels, and exposed concrete. The more private spaces- the bedrooms, are located on the 3rd floor which external envelope is cladded with timber slats, giving extra privacy and security. This double-skinned façade acts as a sunshade, reducing the amount of heat collected in the building. Some of the slats are open-able panels; which, when opened, create wind walls and encourage natural ventilation. When the Jolys are away, the panels can be completely shut to protect their belongings from the heat and solar damage. While serving environmental purposes, the timber slats also add a warm but modern look to the house.
Architects: Stu/D/O Architects
Location: Bangkok, Thailand
Area: 750.0 sqm
Project Year: 2014
Photographs: Krisada Boonchaleow, Courtesy of Stu/D/O Architects, Chanin Limapornvanich
Structural Engineer: .N.G. Engineering Ordinary Partnerships
Mechanical Engineer: MEE Consultants
Interior Architect: Attapon Wiboonyanon
Landscape Architect: Teerachai Tharawongthawat
















More Similar Articles Like This
Spectacular Rooftop Apartment by Innocad
Exploring the New World of Luxury Hoteling
5 Ways to Turn Your Yard Into a Fancy Space
Outstanding Bodrum Houses in Yalikavak, Turkey
70 Shades of Green: Benjamin Moore’s Vibrant Paint Colors
How Seattle Lawn Care Service Deals With Overgrown Lawns
Unique Click Clack Hotel In Bogota, Colombia
Spectacular Luxury House in Sarasota, Florida by DSDG Inc. Architects