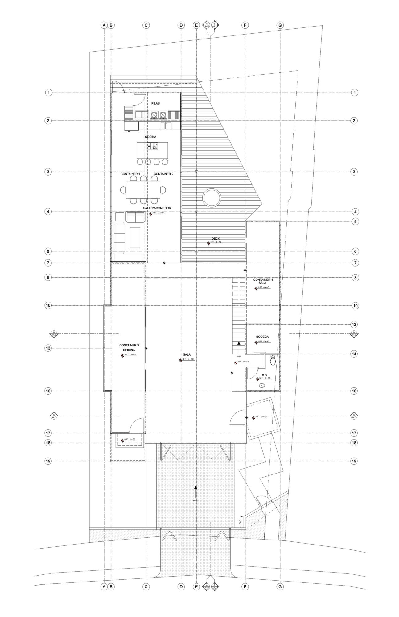
Due to pressing environmental concerns, many modern homes are being designed to impact the natural environment as little as possible, and they are often built using sustainable and recyclable materials. Incubo House is a perfect example of this trend, as it was designed to incorporate a large cedar tree. As a matter of fact, the design was developed in such a way as to ensure views of the tree from every single room within the abode, and as you can probably imagine, this was no simple task to complete.
The residence also boasts a double height volume at its core, which facilitates adequate cross ventilation. The glass façade to the west provides ample natural lighting thus contributing to the abode’s sustainability and appeal. The reusable materials used for this project include cedar tree wood for the stairs and for some of the furnishings as well as certified wood complemented by recycled plastic for the decks. The irrigation systems and toilets receive water via a rainwater collection system, and hot water is ensured by a series of solar panels. Incubo House flaunts 4,305 square feet of living space, and it is an absolute delight to inhabit.
From the architect:
The original cedar tree on the site plays a very important for the layout of the house, so that there is a view of the tree from anywhere in the house. Also, the shape of the house responds to the impact of climate elements of the place: the central double height module acts as a lung with cross ventilation, and the west glass facade works for natural lighting.
Several considerations were taken into account so that the house had the least possible environmental impact, both in design and materials, as well as in systems for energy conservation. For example this was considered in the choice of materials, so that they are renewable, reusable or recyclable in addition to durable and low maintenance. Wood from the cedar tree was used in the stairs, and some other details of furniture in the house. The deck consists of certified wood from renewable sources mixed with recycled plastic, concrete floors and bamboo, among others. Additionally, the house has rainwater collection systems for toilets and irrigation, it is planned for solar panels, container doors were reused for most doors of the project, the hot water is solar-heated, cross ventilation is enough so that the home does not require air conditioning, and natural lighting makes virtually no electric lights necessary during the day.
The use of containers in the construction gives a rich contrast to the design, in addition to reducing the environmental impact, which means the reuse of an existing element, generating less CO2 emissions than the cement production and transportation from trucking all those traditional materials to the site, not to mention a less invasiveland movement. It is estimated that the construction time is reduced by 20% and the total cost about 20%.
Architects: María José Trejos
Location: Escazu, Costa Rica
Project Area: 400.0 m2
Project Year: 2013
Photographs: Sergio Pucci , Courtesy of María José Trejos
Structures: Ing. Mauricio Carranza de AESA Ingenieros Consultores
Electrical and Mechanical: Ing. Sergio González Rodríguez
Lighting: Estudio 27
Interiors: María José Trejos y Sergio Pucci
Art: Sergio Pucci
Kitcken: Santos
Dining room, beds, living room: Diseño exclusivo por María José Trejos y Sergio Pucci
Site Area: 544.97 M2














More Similar Articles Like This
Exceptional Coronado Bay Front Estate in California
Tips for Choosing the Right Blue Paint Color for Your Dining Room
Outstanding Bodrum Houses in Yalikavak, Turkey
These Top Tips Will Help You to Turn Your Garden into the Ultimate Glamping Site!
Boracay Resort & Spa in the Fascinating Philippines
Dreamy Oceanfront Chateau In West Vancouver, Canada
Best paint colors for the living room
Beautiful Apartment in Stockholm for $1 Million