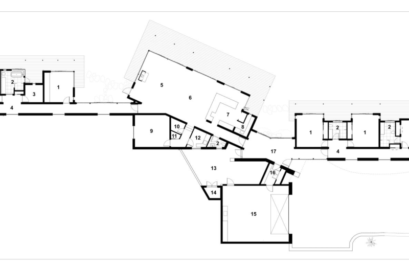
Since cities are becoming more and more crowded and loud, many people actually prefer to build their homes right in the middle of nature, in tranquil places that offer fantastic natural views for the eyes and clean fresh air for the lungs. One such a home is the stunning Brewer House found in Wanaka, New Zealand.
Built in 2012 by Sarah Scott Architects Ltd, this 4,736 square foot abode was constructed on an elevated site overlooking the shores of Lake Wanaka. Benefiting from exquisite views of the New Zealand Southern Alps and of the aforementioned lake, the Brewer House is a fantastic place to call home indeed, even more so since its interiors benefit from high-end amenities, superb decorations and high quality furnishings.
You can admire this amazing abode by browsing through the following images.
Photos by Mickey Ross












More Similar Articles Like This
Stunning Sustainable Home in Costa Rica by SPG Architects
Lawn Care Tips, The Basics For Each SeasonÂ
Seamlessly Apartment by the Beach by ZZ Architects
Secluded Naladhu Island in Maldives
Lovelli Residence: Mediterranean-Style Dwelling in Bali
6 Garden and Lawn Tips to Get Ready for Spring
Tips for Choosing the Right Blue Paint Color for Your Dining Room
How Seattle Lawn Care Service Deals With Overgrown Lawns