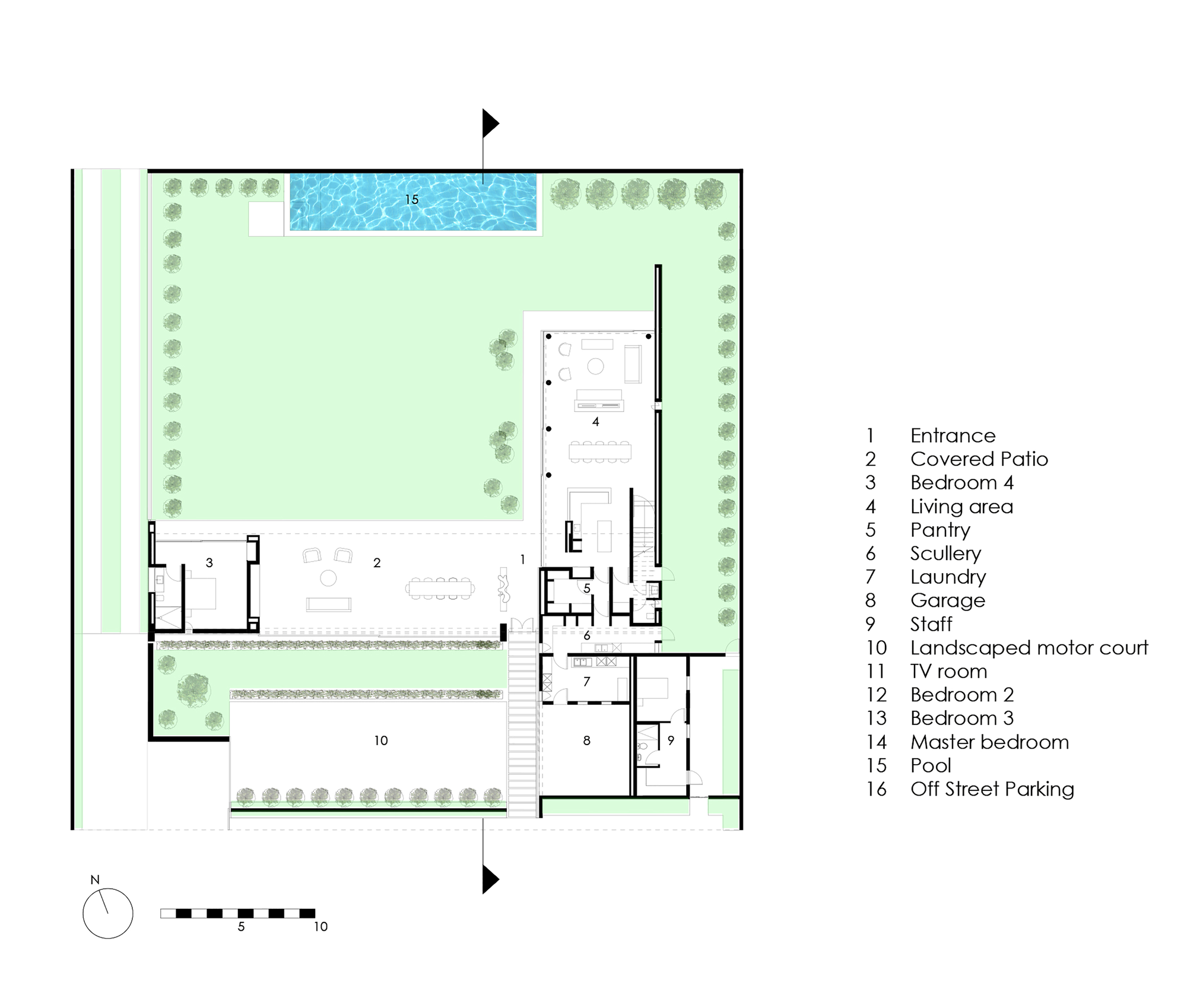
House 01 is a fabulous residence that was sketched out by a firm called Daffonchio & Associates Architects. The residence can be found in Hyde Park, Sandton, South Africa, and it impreses with great versatility since it is able to adapt according to its owner’s needs. The ground floor of House 01 features sliding doors that can be moved completely in order to allow the main living room and the outdoor patio to merge. The bedrooms and the TV room can be found on the first floor, which is why the northern façade of that floor was outfitted with a series of timber shutters, which ensure thermal comfort by providing shade.
The materials that were used in the construction process include flamed granite for the floor tiles, exposed concrete, wire brushed white oak, stone cladding and natural stone. Natural ventilation, cross ventilation, insulation and a passive solar design ensure that the residents would always be able to enjoy cool yet well-lit interiors. During the cold months, the floors are heated using a special system based on hot water, water that is heated naturally thanks to a series of solar geysers.
This amazing home was built with the help of structural engineers from Hull Consulting Engineers, landscape architects from Meleney’s Gardens and Frances Joynt as the head of the project team. The quantity surveyor was SM Schneid Quantity Surveyors, while CTS Projects was the contractor.
Photos by Adam Letch













More Similar Articles Like This
Lawn Care Tips, The Basics For Each Season
The Superb Maradiva Villas Resort & Spa in Mauritius
Secluded Naladhu Island in Maldives
Spectacular Luxury House in Sarasota, Florida by DSDG Inc. Architects
Boracay Resort & Spa in the Fascinating Philippines
Exploring the New World of Luxury Hoteling
Astonishing El Tovar by the Sea
The Sophisticated Casa Villa Flamingo in Spain