Even though it was initially a stable back in the 1800s, this exceptional work place was transformed masterfully thanks to a company called E/L STUDIO. Located in Washington, DC, the abode is now called Naylor Court Studio/Residence, and it is being used for professional purposes as well as for domestic ones.
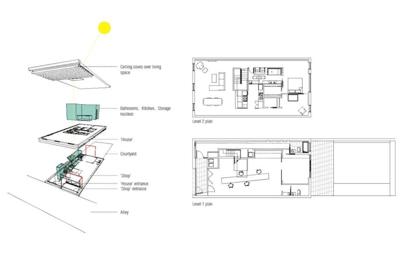
The ground level is occupied by the owner’s shop-house, while the living arrangements can be found upstairs. Highly versatile, the workspace flaunts a special folding glass wall as well as a rolling gate, both of which allow for the expansion of the interior spaces should the need arise. The space between the workplace and the residence is filled by a special volume that includes the storage facilities and the stairs.
Now since we’re talking about an old building, it makes sense that certain reinforcement measures had to be implemented, especially when it comes to the ceiling. For ample illumination, a skylight was placed above the stairs in order to bring much needed natural light throughout both volumes. Even though it represents a modern abode nowadays, the Naylor Court Studio/Residence still retains some of its older charm, since its horse tether rings, masonry and heavy timber structure were left intact.
From the E/L STUDIO:
An 1800’s horse stable is transformed from an empty shell on a neglected alley into a classic shop-house with architect’s storefront studio and living quarters above. The studio is a void set back from the alley by an interstitial zone separating entrances for work and home.
A rolling gate and folding glass wall spanning the width of the old carriage opening enables the interior to open completely to the street and expands the space from alley to garden in warm months for events. A narrow volume containing stairs and storage frames the interior, creating a buffer to the residence. A floating volume on the second level contains baths and kitchen.
Structural reinforcement in the ceiling is accentuated with a series of coves which define the public area. A skylight above the stairs brings light to both levels by means of a translucent box.
Much of the historic character of the stable is preserved and highlighted including exposed heavy timber structure, masonry and horse tether rings.
Photos by Pepper Watkins



















More Similar Articles Like This
Marvelous Anantara Dhigu Resort
Exquisite Crossacres Mansion In Surrey, England
The JKC1 House in Bukit Timah, Singapore
Vibrant Wood Tones: Explore a Spectrum of Spray Paint Colors!
A Superb Italianate Mansion in California, USA
Astonishing El Tovar by the Sea
Green Gables Home In Fairfield, Connecticut, United States
Exploring the New World of Luxury Hoteling