It was DT Estudi‘s experts who designed the amazing Villa Campo Belo House in São Paulo, Brazil, more specifically Luis Felipe Bernardini, Thais Aquino Alves da Cunha and Marcelo Mesquita Nunes. The abode is a part of a larger condo that includes 7 houses. However, since this was the only home available for purchase when DT Estudi’s architects saw the complex, it was the only one chosen for this extensive renovation project.
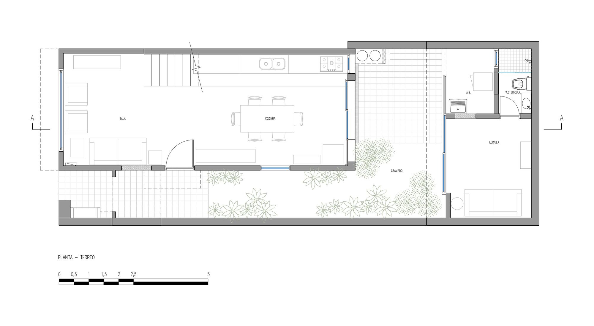
With just 1,184 square feet of living space, the residence offers impressive living conditions that meet modern standards of comfort. Still, many of the building’s older elements were kept intact in order to maintain a link to its roots. One of the most dramatic changes in the interior design involved the elimination of a wall that separated the kitchen and living room. This allowed for the creation of a multipurpose area that features great dining and relaxation opportunities.
The backyard room was modified extensively and now includes an office, a private bathroom and a service area. Other interior highlights consist of wooden floors, modern furniture pieces and natural plants that give off an atmosphere of warmth and naturalness.
Photos by Carolina Ribeiro / Revoada Estúdio



















More Similar Articles Like This
Pure Perfection: Discover the Top White Paint Colors for a Flawless Décor
Unique Click Clack Hotel In Bogota, Colombia
The Sophisticated Casa Villa Flamingo in Spain
5 Ways to Turn Your Yard Into a Fancy Space
Contemporary BO House In Envigado, Antioquia, Colombia
Benjamin Moore Exterior Paint: Vibrant Shades for a Striking Home
Green Gables Home In Fairfield, Connecticut, United States
The Superb Villa Verai on Phuket Island, Thailand