Giacomuzzi is a huge duplex completed in 2011 by Monovolume Architecture + Design. It is located near Lake Caldaro in Kaltern, Italy, overlooking beautiful vineyards and fields.
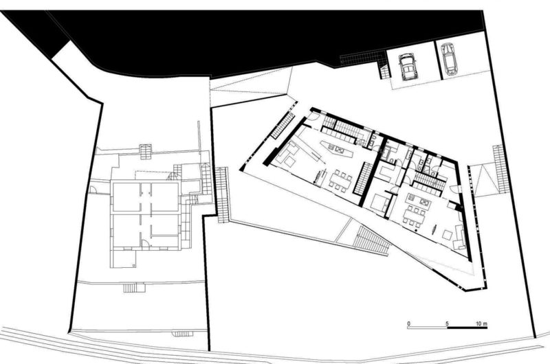
Three sides of the building are closed, ensuring excellent privacy, but the wall that faces the spectacular views is entirely covered with glass. This makes up a perfect frame for the picturesque surroundings, creating the impression of always gazing upon an ever changing painting.
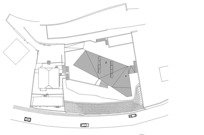
Situated on a sloping lot, the house follows the path of the sun. While the bedrooms and living room face south, the other spaces are oriented towards northwest.
Photos by: René Riller





























More Similar Articles Like This
Shadowed Depths: Vintage-inspired Paint Colors for Dark Basements
Benjamin Moore Exterior Paint: Vibrant Shades for a Striking Home
Exploring the New World of Luxury Hoteling
Extraordinary Constance Halaveli Maldives Resort
70 Shades of Green: Benjamin Moore’s Vibrant Paint Colors
Gayton Road Residence by Paxton Locher Studio
Lawn Care Tips, The Basics For Each SeasonÂ
Stunning Sustainable Home in Costa Rica by SPG Architects