Built on a sloping site with plenty of vegetation in Mendiolaza, Córdoba, Argentina, the FD House is a modern project that was completed in 2014 by alarciaferrer arquitectos. It features 3,444 square feet of living space and is divided into three floors that are linked under a sloping roof. The roof was built at an angle in order to match the natural slope of the hill.
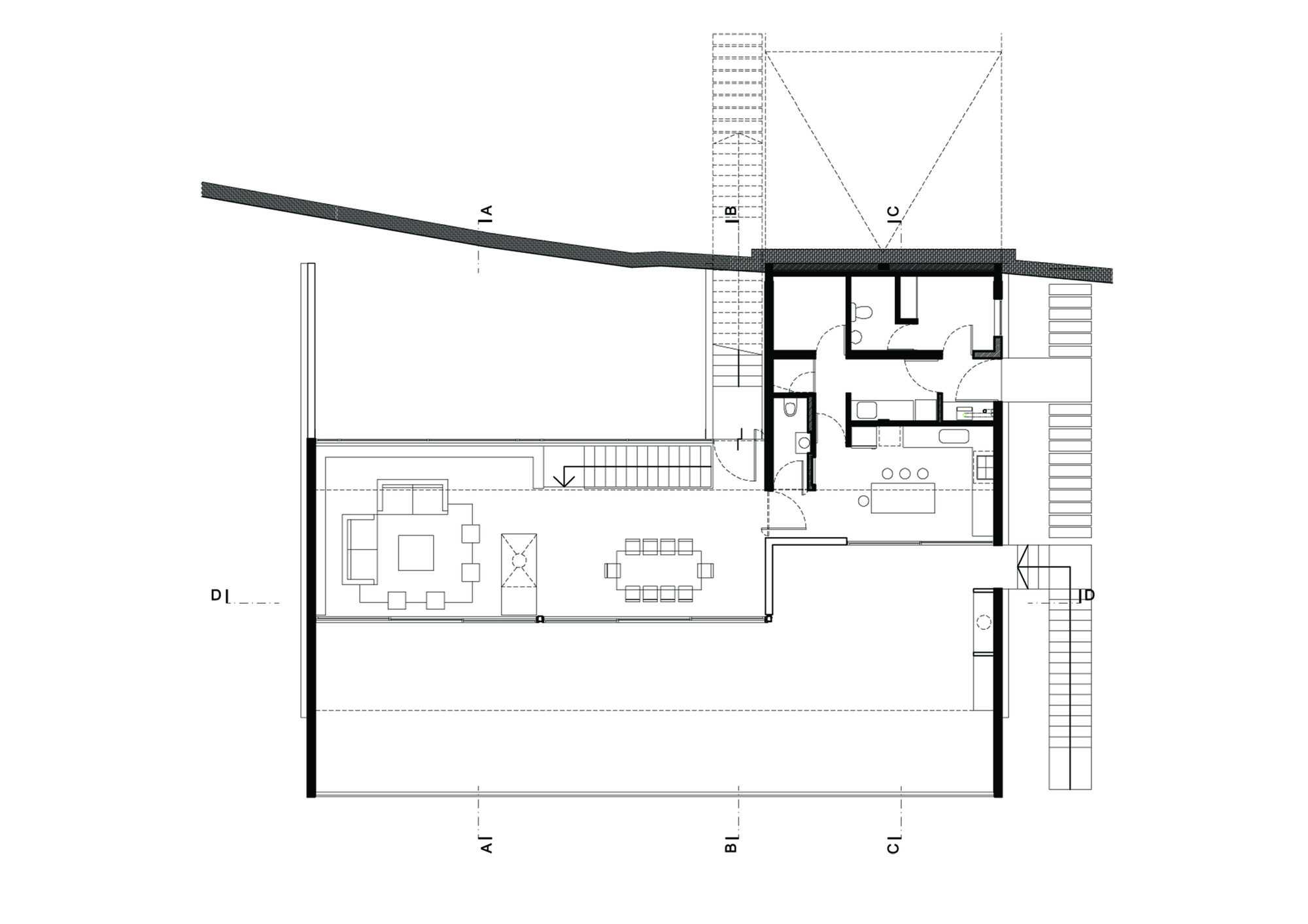
Except for the garage, most of the house is submerged under the street level, which allows it to take on relatively subtle look. The entryway is reached by descending through a courtyard, and it is located on the public level. This floor also includes a cantilevered terrace courtyard that offers stunning panoramas of the Cordoba hills. The lower floor comprises the private living areas, which is why it is almost completely buried in the ground.
From the architect:
The proposal consists of a conventional domestic program located in a site with a steep slope and connected to a landscape of enormous wealth. The construction is divided into three levels that are unified under a sloping roof that accompanies the natural slope.
Most of the project is buried under the street level (except the garage) achieving an implementation with low visual impact of the volume built into the environment.
The descent through a courtyard leads to the entrance of the house where we can also find the entire public level of the house. This is completed with a cantilevered terrace courtyard projecting into the breathtaking view of the hills of Córdoba, becoming the fundamental strategy of the project.
This new space is established as the most vital area of the house since it corresponds to the external expansion of the entire public area. In turn, this terrace courtyard is contained by party walls in order to protect its privacy.
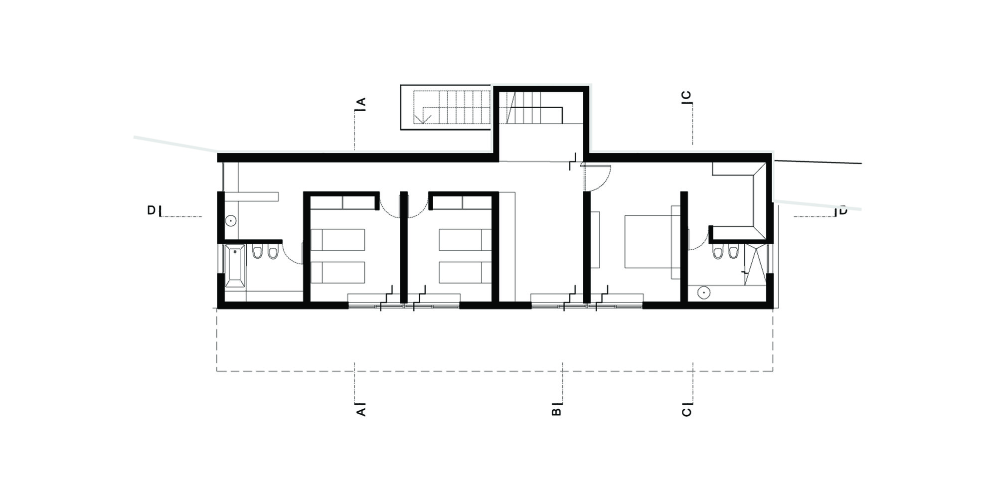
Finally, the lower level is almost submerged in the ground vegetation thus ensuring the privacy of the private area of the house.
Architects: alarciaferrer arquitectos
Location: Mendiolaza, Córdoba, Argentina
Arquitectos Autores: Joaquin Alarcia, Federico Ferrer Deheza
Project Area: 320.0 m2
Project Year: 2014
Photographs: Florencia Ferrer Deheza , Lucas Carranza
Structures: German Serboraria
Construction: Julio Quiroz











More Similar Articles Like This
Tips for Choosing the Right Blue Paint Color for Your Dining Room
Outstanding Bodrum Houses in Yalikavak, Turkey
Superb Luxury Penthouse in Portomaso, Malta
Exceptional Coronado Bay Front Estate in California
Boracay Resort & Spa in the Fascinating Philippines
A Superb Italianate Mansion in California, USA
Shadowed Depths: Vintage-inspired Paint Colors for Dark Basements
Exquisite Crossacres Mansion In Surrey, England