Situated on the top of a slope site of 5000 sq. meters, the Pangal Cabin designed by EMa Arquitectos is surrounded by local trees such as Quillayes, Cactus and Espinos. The house was supposed to be used as a refuge but gradually was turned into a dolled place.
The main material, used in building it, was the steel because of its faster construction and versatility, but for the coverings the wood fit perfectly. The idea of the concept was to create a low budget solution in response to the environmental conditions that could gather all the facilities needed such as thermic comfort or incorporation of natural light and solar energy.
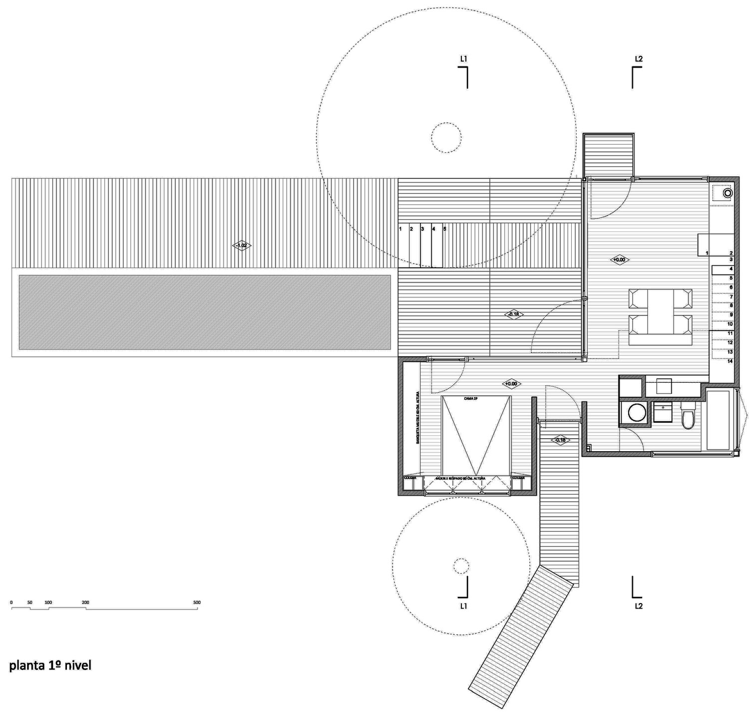
The pool communicates with the house through a deck, offering easy access and being adapted to the conditions of the site.
This luxurious cabin makes you feel like you’re a part of the environment even from the inside.
Photos by Marcelo Cáceres





















More Similar Articles Like This
Vibrant Wood Tones: Explore a Spectrum of Spray Paint Colors!
Santa Barbara Style Home in Paradise Valley, Phoenix
Dreamy Oceanfront Chateau In West Vancouver, Canada
The Sophisticated Casa Villa Flamingo in Spain
The JKC1 House in Bukit Timah, Singapore
Loving Luxury at Mardan Palace Resort, Turkey
How Seattle Lawn Care Service Deals With Overgrown Lawns
10 Different Types of Blue Paint Colors