Located in Luz, Portugal, the stunning Villa Escarpa was completed in 2012 by Mario Martins Atelier. Local regulations asked for the new building to be erected on the lot of a previous home. The old residence had one absolutely irresistible feature: its excellent location overlooking the Praia da Luz village and the Algarve coastline. This was a huge advantage for the new project.
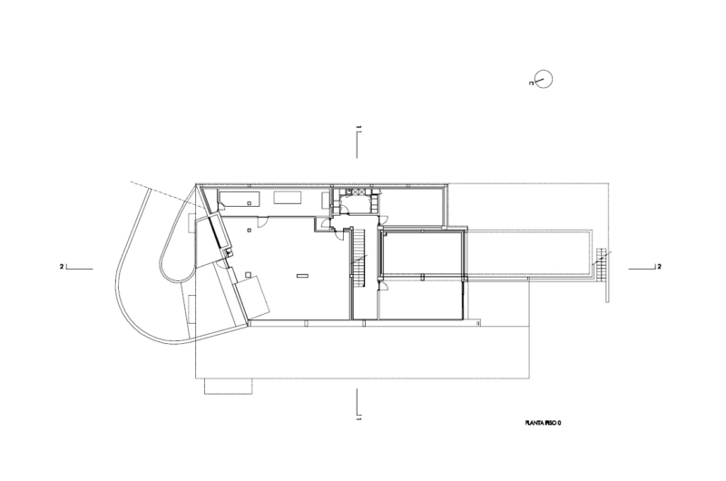
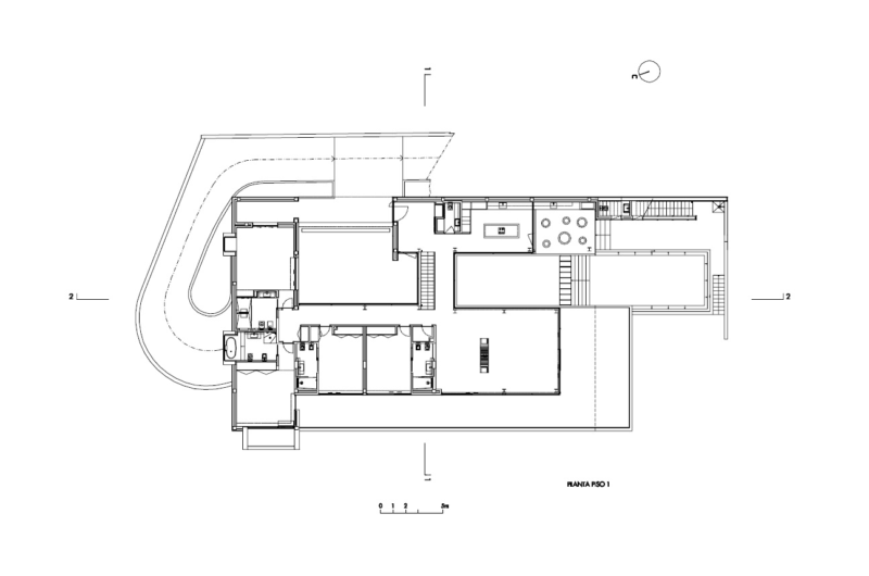
The steep slope on which Villa Escarpa is situated has determined its exquisite minimalist architecture: the house seems to be hovering above the hill. The prevailing winds in the region asked for sheltered courtyard and terraces, and the extensive use of glass ensured a remarkable visual lightness. The roof terrace enhances this feel of weightlessness, while also ensuring unobstructed views.
A long pool separates the living area from the kitchen, but it also acts like a fluid visual bridge between the two. Floor-to-ceiling windows and sliding glass doors keeps these spaces sheltered from the winds yet completely open to the warming rays of the sun. Obviously, the four bedrooms are less exposed, being situated in the villa’s most private area.
Photos by FG+SG























More Similar Articles Like This
10 Different Types of Blue Paint Colors
Saguaro Palm Springs by Joie de Vivre
Boracay Resort & Spa in the Fascinating Philippines
How Seattle Lawn Care Service Deals With Overgrown Lawns
Spectacular Rooftop Apartment by Innocad
5 Ways to Turn Your Yard Into a Fancy Space
Wonderful Yachting Club Villas at Elounda Beach by Davide Macullo Architects
Extraordinary Constance Halaveli Maldives Resort