Featuring a stunning contemporary design based on three levels, Casa Blanca was designed by Martín Dulanto and was constructed in 2014 within Peru‘s Asia District. The house offers 882 square feet of living space and includes a basement, a fist floor and a rooftop terrace. The basement comprises three secondary bedrooms as well as a living room, and it features large windows that welcome plenty of natural light within. The social spaces are located on the first floor, which boasts a glass closing that facilitates the merger between the living room, dining room and kitchen.
All levels are linked by a central patio, which flaunts a vibrant orange staircase. The terrace at the third level incorporates a living room, a dining area, a resting space, a swimming pool and a barbecue space. The service bedroom, service bathroom, service patio and kitchen were inserted at the first floor alongside the main bedroom, which comes with its own private bathroom.
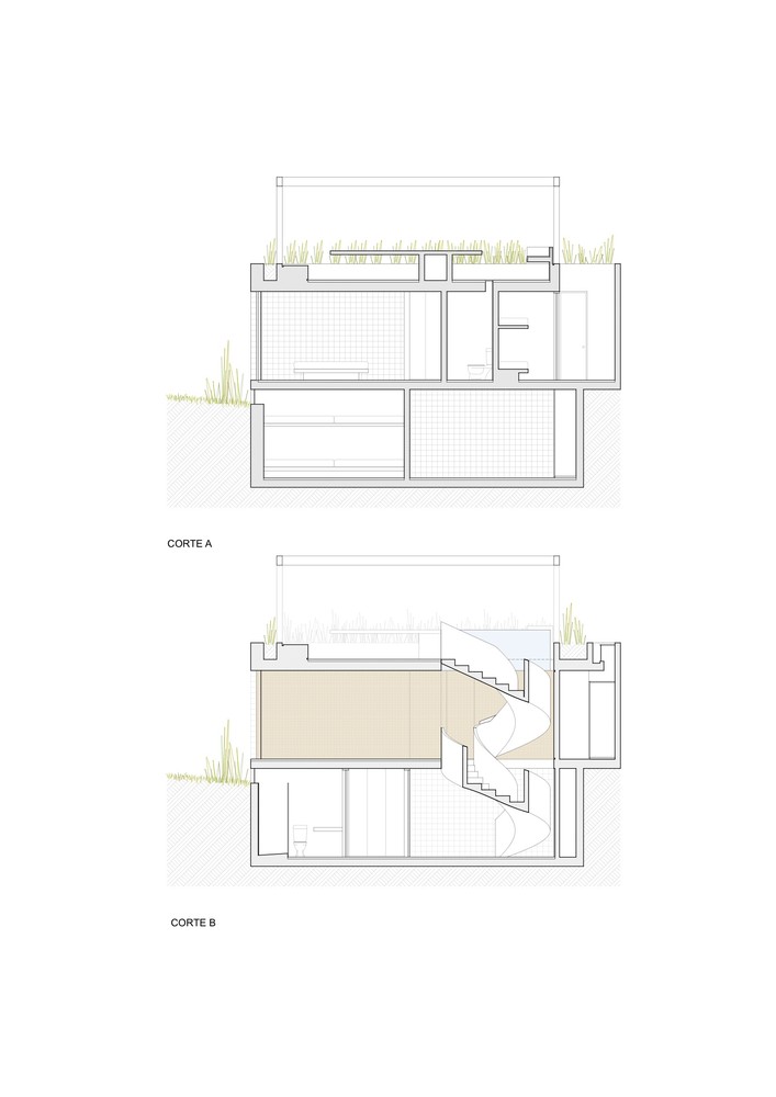
From the architect:
This house has been worked on to look like a massive block, which has been excavated to generate different areas in the inside.
The house has three different levels: the basement, first floor and the terrace.
The basement is connected with the exterior by tall windows, which allow plenty of sunlight and cross ventilation for every bedroom. The introverted character in which the design is based permits the user to enjoy privacy in every ambiance on this level.
The social area on the interior is located in the first floor. It is incorporated by a glass closing, which allows a total integration of the living room, the dining area, and the kitchen. It also allows a full view of the park situated in front of the house.
The terrace has been plotted as an open and integrated space.
A central patio integrates the house, and allows a full connection on its three levels, and in the meanwhile provides plenty of natural light and excellent ventilation. We can observe an orange staircase situated in this ambiance that plays a main role as a protagonist.
The project has the following areas:
1. Basement: Central patio, living room, 3 secondary bedrooms with their own private bathrooms.
2. First floor: main bedroom with private bathroom, dining room, living room, patio, kitchen, service bedroom, service bathroom, service patio.
3. Terrace: living room, dining room, pool, resting area, BBQ area.
Architects: Martín Dulanto
Location: Asia District, Peru
Area: 84.0 m2
Project Year: 2014
Photography: Juan Solano Ojasi
Collaborators: Raúl Montesinos, Dora Gonzales, Martha Leiva
Construction: Taller 33
Structural Engineer: Jorge Avendaño













More Similar Articles Like This
Extraordinary Constance Halaveli Maldives Resort
A Superb Italianate Mansion in California, USA
Lovelli Residence: Mediterranean-Style Dwelling in Bali
Saguaro Palm Springs by Joie de Vivre
The Superb Villa Verai on Phuket Island, Thailand
Gayton Road Residence by Paxton Locher Studio
Marvelous Anantara Dhigu Resort
Santa Barbara Style Home in Paradise Valley, Phoenix